EasyManua.ls Logo

Daikin VAM-FA - Page 20

Daikin VAM-FA
85 pages
Print Icon
To Next Page IconTo Next Page
To Next Page IconTo Next Page
To Previous Page IconTo Previous Page
To Previous Page IconTo Previous Page
Loading...
Heat reclaim ventilation • VAM-FA/FB
1
7
Ventilation • Heat reclaim ventilation
18
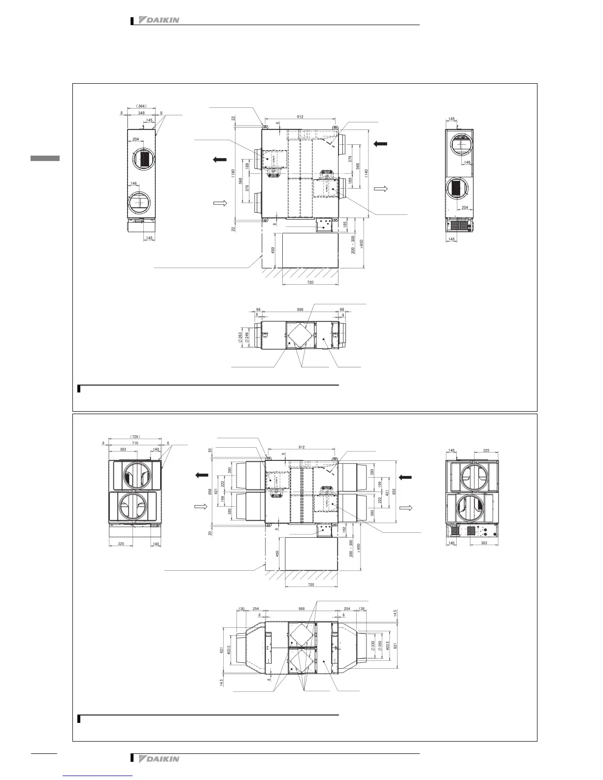
7 Dimensional drawings
7 - 1 Dimensional Drawings
3D081166
VAM1000FB
Maintenance cover Air lters Switchbox
Inspection hole
Switch box
Supply air to room
Return air from room
RA
SA
Damper plate
Exhaust air fan
Exhaust air to outdoors
Maintenance space for the heat exchange
element, the air filters and fans
Fresh air from outdoors
(outdoor air)
EA
OA
Supply air fan
Heat exchange element
Sealing
Ceiling hook
4 – 12 x 40 oval hole
NOTES
1. Be sure to provide the inspection hole to inspect the air filters, the exchange elements and fans.
3D081167
VAM1500FB
Maintenance cover Air lters Switchbox
Inspection hole
Switch box
Supply air to room
Return air from room
RA
SA
Damper plate
Exhaust air fan (2x)
Exhaust air to outdoors
Maintenance space for the heat exchange
element, the air filters and fans
Fresh air from outdoors
(outdoor air)
EA
OA
Supply air fan (2x)
Heat exchange element
Sealing
Ceiling hook
4 – 14 x 40 oval hole
NOTES
1. Be sure to provide the inspection hole to inspect the air filters, the exchange elements and fans.

Related product manuals