EasyManua.ls Logo

Daikin VAM-FA - 13-8 Electrical wiring procedure

Daikin VAM-FA
85 pages
Print Icon
To Next Page IconTo Next Page
To Next Page IconTo Next Page
To Previous Page IconTo Previous Page
To Previous Page IconTo Previous Page
Loading...
3
1
13
Ventilation • Heat reclaim ventilation
55
Heat reclaim ventilation • VAM-FA/FB
13 Installation
13 - 8 Electrical wiring procedure
Before obtaining access to terminal devices, all power supply circuits must be interrupted.
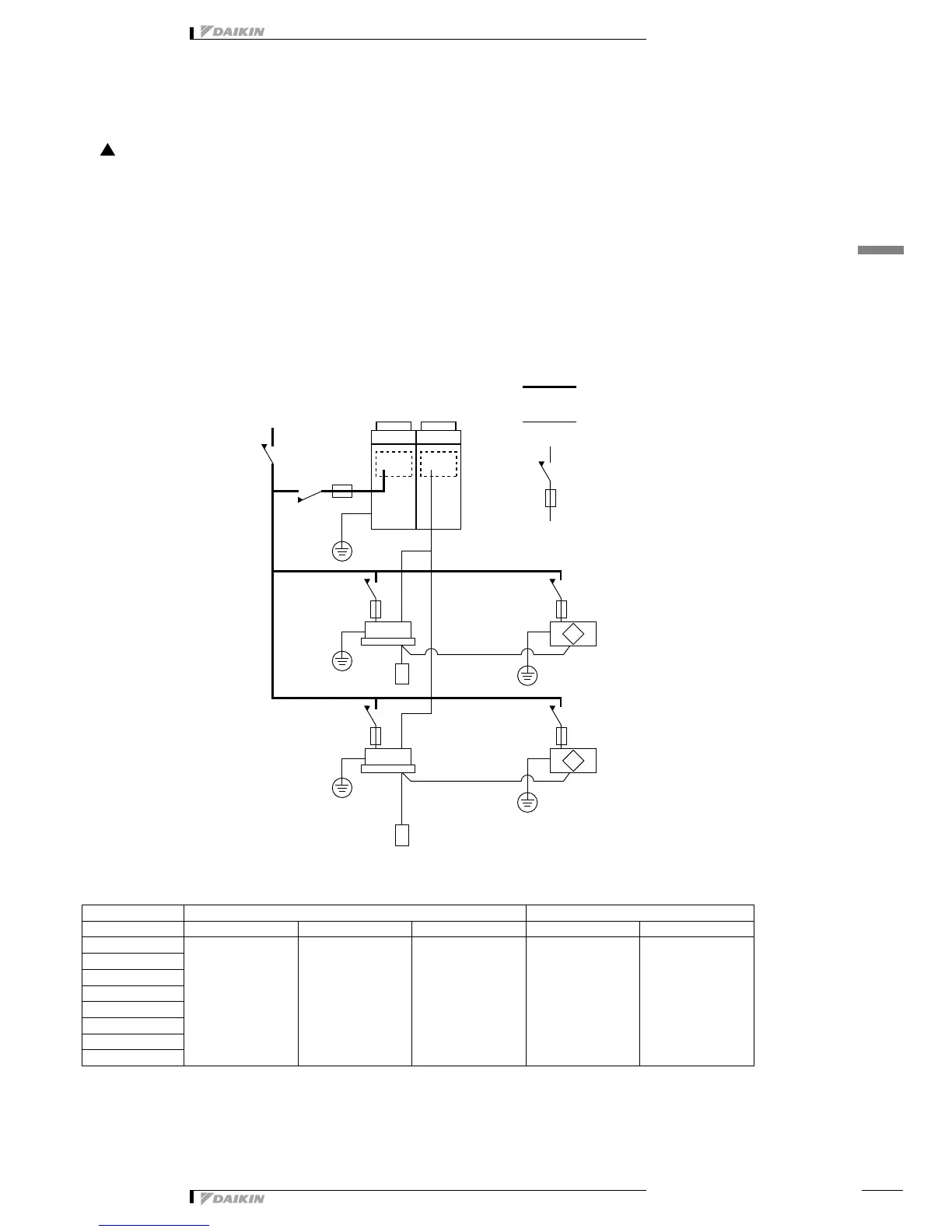
Connection of Wiring
Connect the wires in accordance with the diagram of each system.
All wiring must be performed by an authorized electrician.
All field supplied parts and materials and electric works must conform to local codes.
Use copper wire only.
Connection of wiring
A circuit breaker capable of shutting down supply to the entire system must be installed.
A single switch can be used to supply power to units on the same system. However, branch switches and branch circuit breakers must be
selected carefully.
Fit the power supply wiring of each unit with a switch and fuse as shown in the drawing.
Be sure to give the electric grounding (earth) connection.
Complete System Example
Model Power supply wiring Transmission wiring
FXYCP150FA Field supplied fuses Wire Size Wire Size
FXYCP250FA
15A H05VV-U3G
Wire size must comply
with local codes.
Shield wire (2 wire) 0.75 ~ 1.25 mm
2
FXYCP350FA
FXYCP500FA
FXYCP650FA
FXYCP800FA
FXYCP1000FA
FXYCP1500FA
FXYCP2000FA
(HC0083)
!
(HC0082)
Power supply
VRV
outdoor unit
Main
switch
VRV
Indoor unit
VRV
Indoor unit
Remote control
Power supply
wiring
Transmission
wiring
Switch
Fuse
HRV
HRV

Related product manuals