EasyManua.ls Logo

Daikin VAM-FA - Page 23

Daikin VAM-FA
85 pages
Print Icon
To Next Page IconTo Next Page
To Next Page IconTo Next Page
To Previous Page IconTo Previous Page
To Previous Page IconTo Previous Page
Loading...
3
1
8
Ventilation • Heat reclaim ventilation
21
Heat reclaim ventilation • VAM-FA/FB
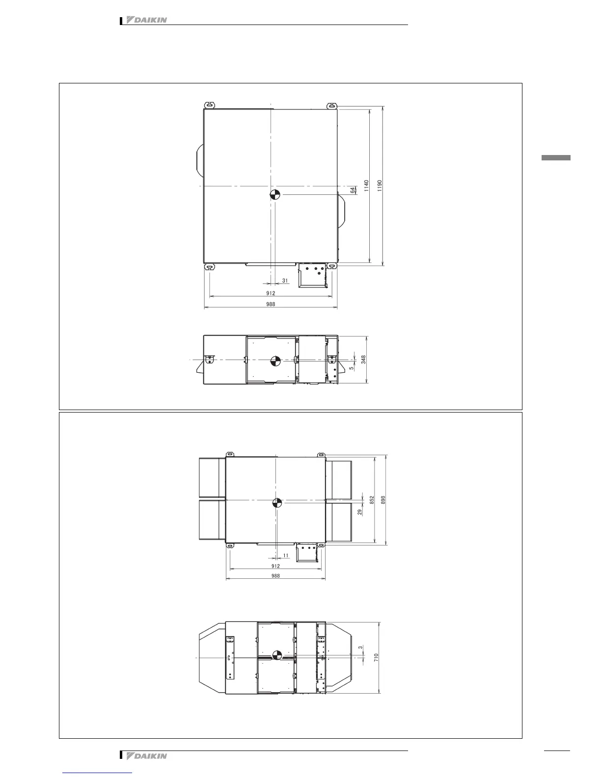
8 Centre of gravity
8 - 1 Centre of Gravity
4D081264
VAM1000FB
4D081265
VAM1500FB

Related product manuals