EasyManua.ls Logo

Daikin VAM-FA - 15 - 3 - 2 Independent system

Daikin VAM-FA
85 pages
Print Icon
To Next Page IconTo Next Page
To Next Page IconTo Next Page
To Previous Page IconTo Previous Page
To Previous Page IconTo Previous Page
Loading...
Heat reclaim ventilation • VAM-FA/FB
1
15
Ventilation • Heat reclaim ventilation
68
15 Control systems
15 - 3 Basic patterns
15 - 3 - 1 List of control system
Control
system
Purposes and applications Description of system
Optional accessories
required
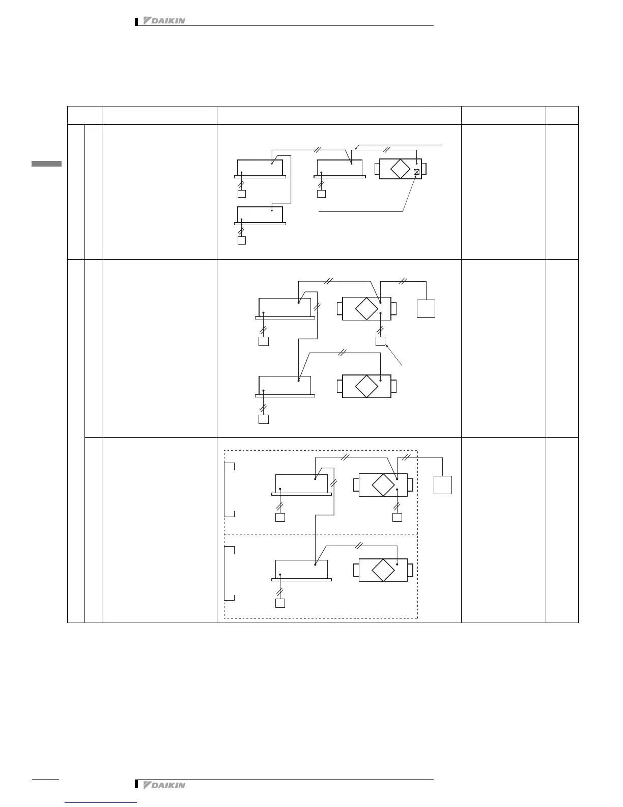
Interlocked operation system with VRV
systems and SkyAir series
Interlocked operation with 2 or more groups
When the HRV unit is interlocked to 2
or more groups of indoor units, The
HRV unit operates if one of indoor unit
in the groups is in operation. The HRV
unit can also be operated
independently by remote control for
indoor unit, even if the indoor unit is not
in operation.
KRP2A61
Adapter PCB for remote
control
(One adapter PCB should
be installed in either the
HRV unit or the indoor
unit.)
Centralized control system
Collective / Individual control
[Unified On / Off Controller]
A maximum of 16 groups can be
controlled of “On / Off” by one controller,
and up to four controllers can be
installed in one system.
[Schedule Timer]
One schedule timer can control the
weekly schedule of up to 128 units.
[Adapter PCB for remote control]
One adapter PCB can control up to
64 groups collectively.
DCS301B61
Unified On / Off
Controller
(up to 4 controllers)
DST301B61
Schedule timer
KRP2A61
Adapter PCB for remote
control (not possible to
use together with other
central control)
* One of the above control
should be installed in indoor
unit.
(However, only KRP2A61 can
also be installed in HRV unit.)
Zone control system
The Central remote controller can
control the zone operation of the
several groups of the units collectively.
Central remote controller can control
the independent operation of HRV unit
in each zone.
DCS302B61
Central remote control
Remote controller for indoor unit Remote control for indoor unit
Adapter PCB for remote conrol
Remote control for indoor unit
Indoor unit Indoor unit
Central transmission line
HRV unit
Remote control for HRV unit
Remote control for indoor unit
Indoor unit HRV unit
Unified On / Off
controller or
Schedule timer
or Adapter PCB
for remote
control
Remote control
for indoor unit
Indoor unit
HRV unit
Remote control for HRV unit
Remote control for indoor unit
Indoor unit HRV unit
Central
remote
control
Z
o
n
e
1
Indoor unit
HRV unit
Z
o
n
e
2
Remote control for indoor unit

Related product manuals