EasyManua.ls Logo

Daikin VAM-FA - 15 - 4 - 2 To connect the remote control to the HRV unit

Daikin VAM-FA
85 pages
Print Icon
To Next Page IconTo Next Page
To Next Page IconTo Next Page
To Previous Page IconTo Previous Page
To Previous Page IconTo Previous Page
Loading...
Heat reclaim ventilation • VAM-FA/FB
1
15
Ventilation • Heat reclaim ventilation
76
15 Control systems
15 - 4 Applicable patterns
15 - 4 - 1 Additional functions
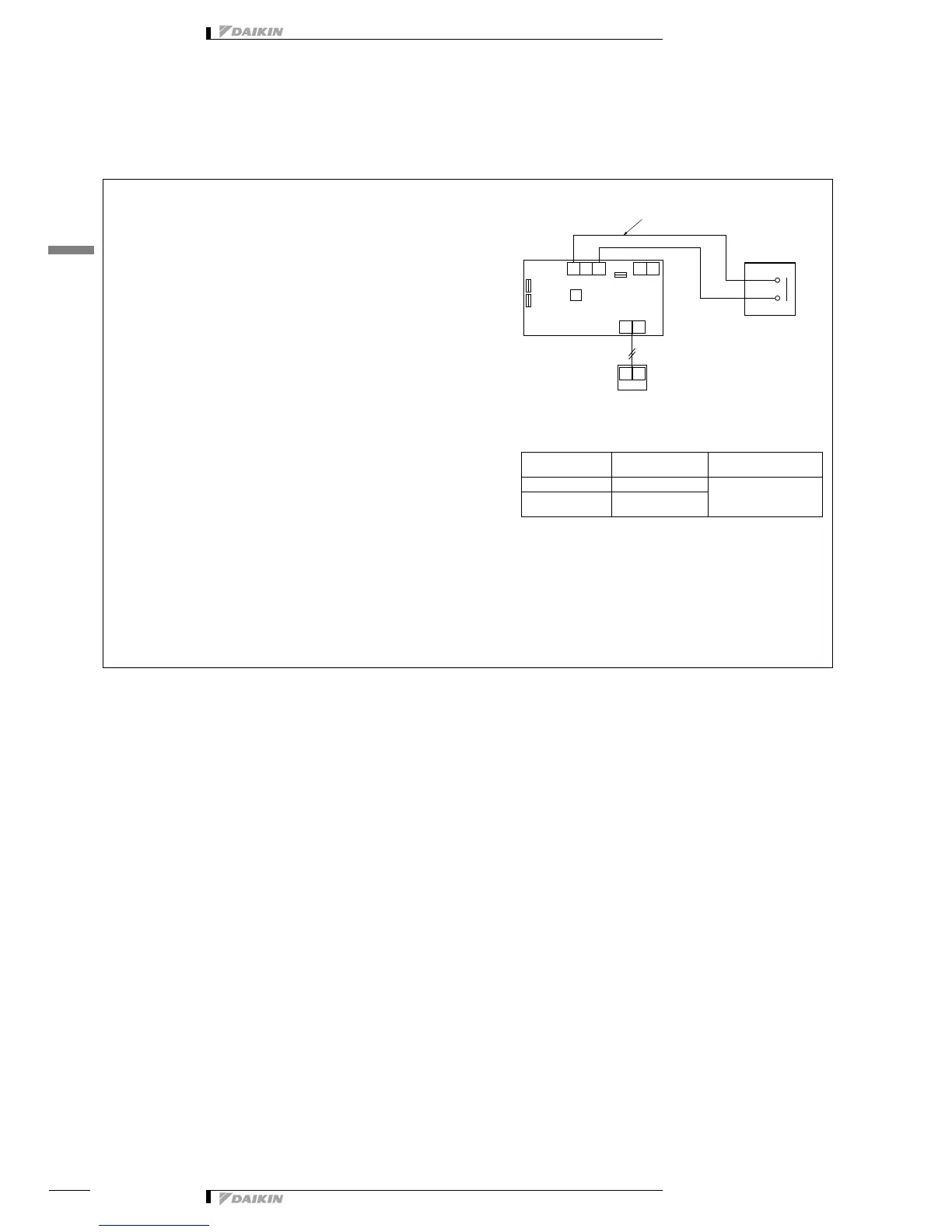
Fresh-up operation by external input [HRV unit]
Purposes and functions
When the operation is interlocked with the local ventilating fan
(such as the one for toilet or kitchen), the HRV unit performs the
over-supply operation to prevent the reverse flow of the odor.
The flow rate of supply air becomes higher than that of exhaust
air.
Example of control wiring
Local wiring
Note:
The connecting wiring between HRV unit and the terminal for
local connection can be extended up to 50 m maximum.
Switch setting of HRV unit
No change is required (factory setting)
Optional accessories required
None
X9A
X10A
X11A
J1 J2 F1 F2
P1P2
P1P2
JC
SS1
(HC0032)
Connecting line can be extended up to 50 m maximum.
(Terminal for local connection)
HRV unit
Remote control for HRV unit
Operation of HRV
unit
Terminal for local
connection
Capacity of connecting
terminal
Fresh-up Short-circuit No-voltage normally
open contact for micro-
current 16 V, 10 mA
Normal Open circuit

Related product manuals