EasyManua.ls Logo

Danfoss VLT CDS 302 - EMC Correct Installation of an IP20 Frequency Converter

Danfoss VLT CDS 302
172 pages
Print Icon
To Next Page IconTo Next Page
To Next Page IconTo Next Page
To Previous Page IconTo Previous Page
To Previous Page IconTo Previous Page
Loading...
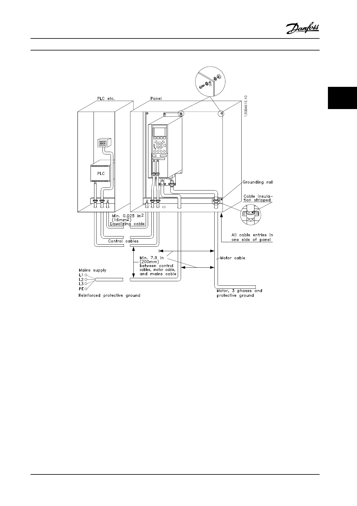
Figure 3.27 EMC Correct Installation of an IP20 Frequency Converter
How to Install Operating Instructions
MG34M422 Danfoss A/S © Rev. 2013-07-03 All rights reserved. 27
3 3

Table of Contents

Related product manuals