EasyManua.ls Logo

Danfoss VLT HVAC Drive FC 102 - Page 45

Danfoss VLT HVAC Drive FC 102
140 pages
Print Icon
To Next Page IconTo Next Page
To Next Page IconTo Next Page
To Previous Page IconTo Previous Page
To Previous Page IconTo Previous Page
Loading...
+DC 89
FASTENER TORQUE: M10 19Nm (14 FT -LB)
+DC 89
130BA860.10
1
5
4
3
2
8
10
9
FUSE
C J3
ONNECT
CH22 CH22 CH22
CTI25MB
FASTENER TORQUE: M10 19Nm (14 FT -LB)
CTI25MB
CH22 CH22 CH22
7
6
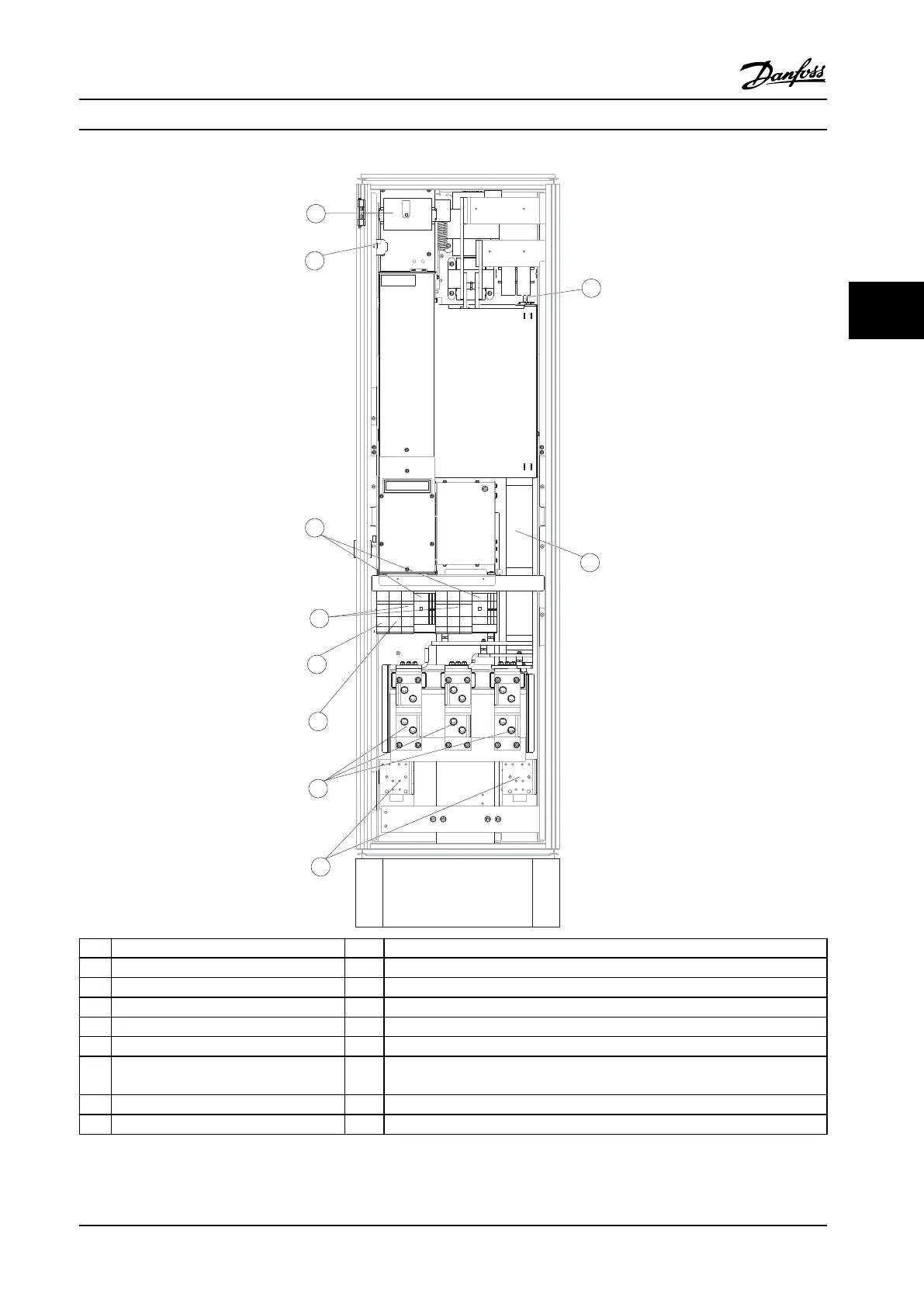
1) 24 V DC, 5 A 5) Load sharing
T1 output taps -DC +DC
Temp switch 88 89
106 104 105 6)
Control transformer fuses (2 or 4 pieces) (see Table 4.22 for part numbers)
2) Manual motor starters 7)
SMPS fuse (see Table 4.18 for part numbers)
3) 30 A fuse-protected power terminals 8)
Manual motor controller fuses (3 or 6 pieces) (see Table 4.20 for part numbers)
4) Line power 9)
Electrical fuses, enclosure types F1 and F2 (3 pieces) (see Table 4.12 to Table 4.16
for part numbers)
R S T 10) 30 Amp fuse-protected power fuses
L1 L2 L3
Figure 4.6 Rectier Cabinet, Enclosure Types F1, F2, F3 and F4
Electrical Installation
Instruction Manual
MG11F522 Danfoss A/S © 08/2014 All rights reserved. 43
4 4

Table of Contents

Other manuals for Danfoss VLT HVAC Drive FC 102

Related product manuals