EasyManua.ls Logo

Danfoss VLT HVAC Drive FC 102 - Page 46

Danfoss VLT HVAC Drive FC 102
140 pages
Print Icon
To Next Page IconTo Next Page
To Next Page IconTo Next Page
To Previous Page IconTo Previous Page
To Previous Page IconTo Previous Page
Loading...
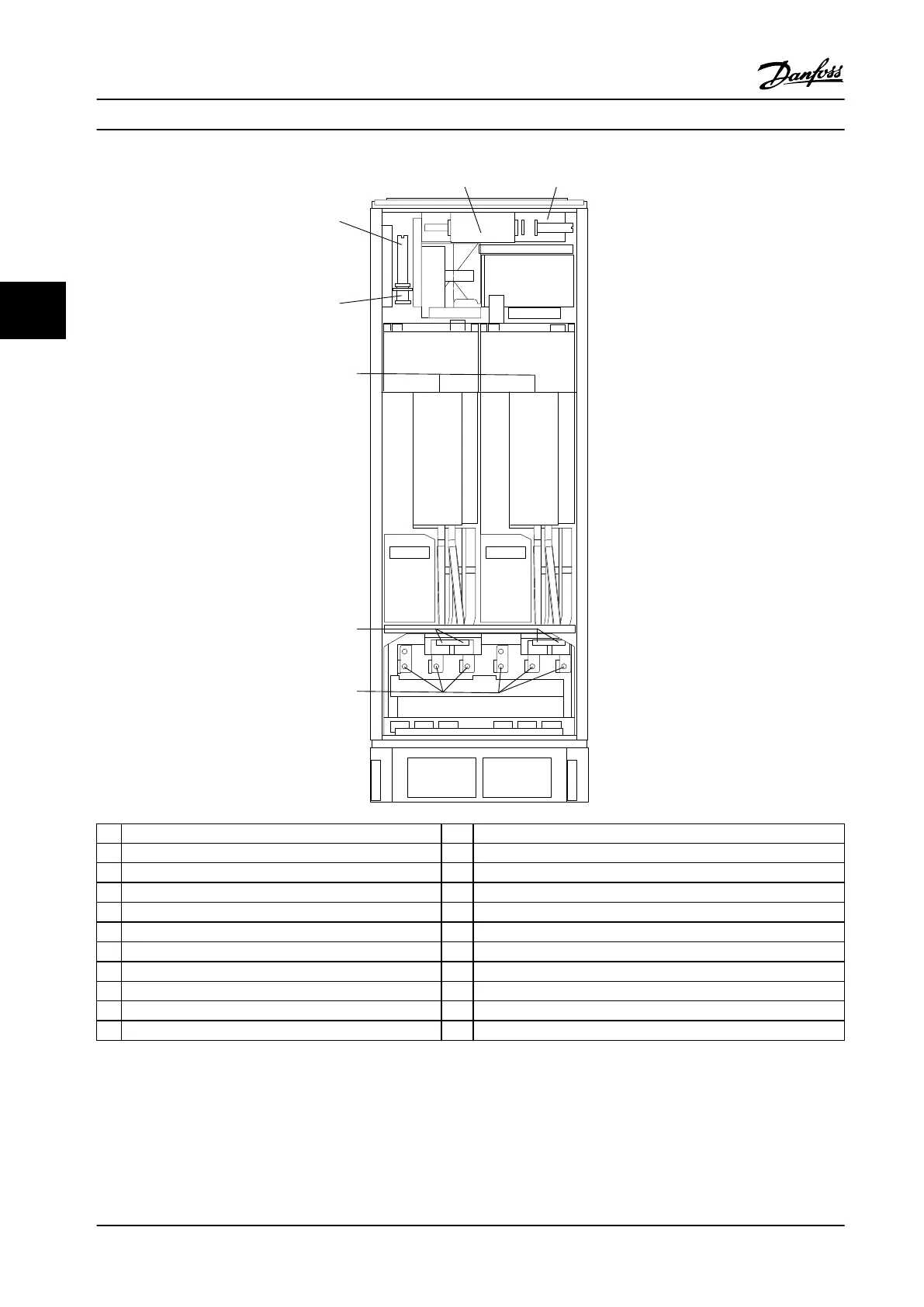
130BA861.13
4
6
5
7, 8, 9
3
2
1
1) External temperature monitoring 6) Motor
2) AUX relay U V W
01 02 03 96 97 98
04 05 06 T1 T2 T3
3) NAMUR 7)
NAMUR fuse (see Table 4.23 for part numbers)
4) AUX fan 8)
Fan fuses (See Table 4.19 for part numbers)
100 101 102 103 9)
SMPS fuses (See Table 4.18 for part numbers)
L1 L2 L1 L2
5) Brake
-R +R
81 82
Figure 4.7 Inverter Cabinet, Enclosure Types F1 and F3
Electrical Installation
VLT
®
HVAC Drive FC 102
44 Danfoss A/S © 08/2014 All rights reserved. MG11F522
44

Table of Contents

Other manuals for Danfoss VLT HVAC Drive FC 102

Related product manuals