EasyManua.ls Logo

DanVex DD Series - Ducting Connection Diagram

DanVex DD Series
39 pages
Print Icon
To Next Page IconTo Next Page
To Next Page IconTo Next Page
To Previous Page IconTo Previous Page
To Previous Page IconTo Previous Page
Loading...
Page 11 of 39
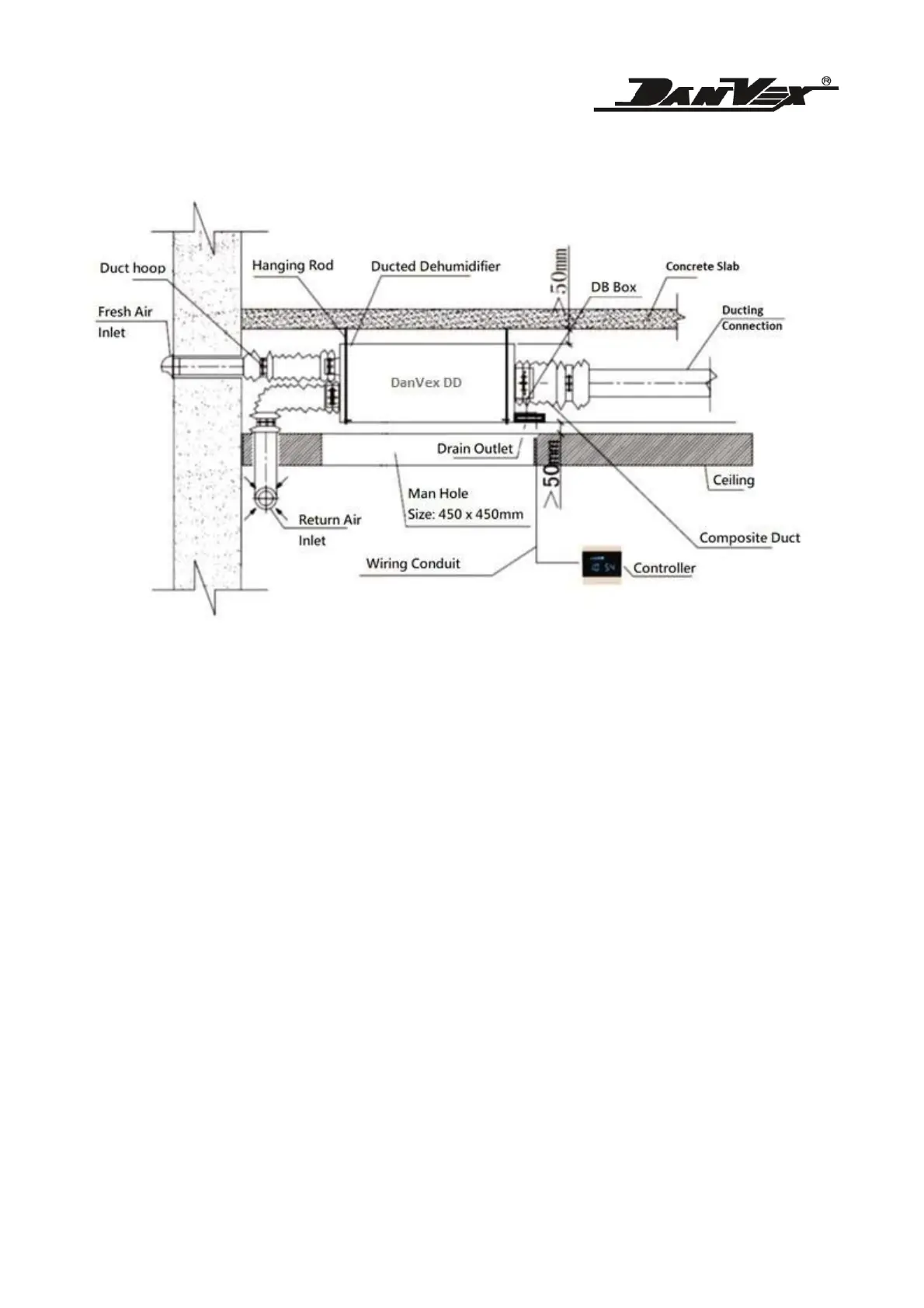
3.8 Ducting Connection Diagram (example)

Related product manuals