EasyManua.ls Logo

Deister electronic proxSafe flexx - 3.4.1 Wall mounting flexx 6 U

Default Icon
44 pages
Print Icon
To Next Page IconTo Next Page
To Next Page IconTo Next Page
To Previous Page IconTo Previous Page
To Previous Page IconTo Previous Page
Loading...
proxSafe flexx
3.4.1
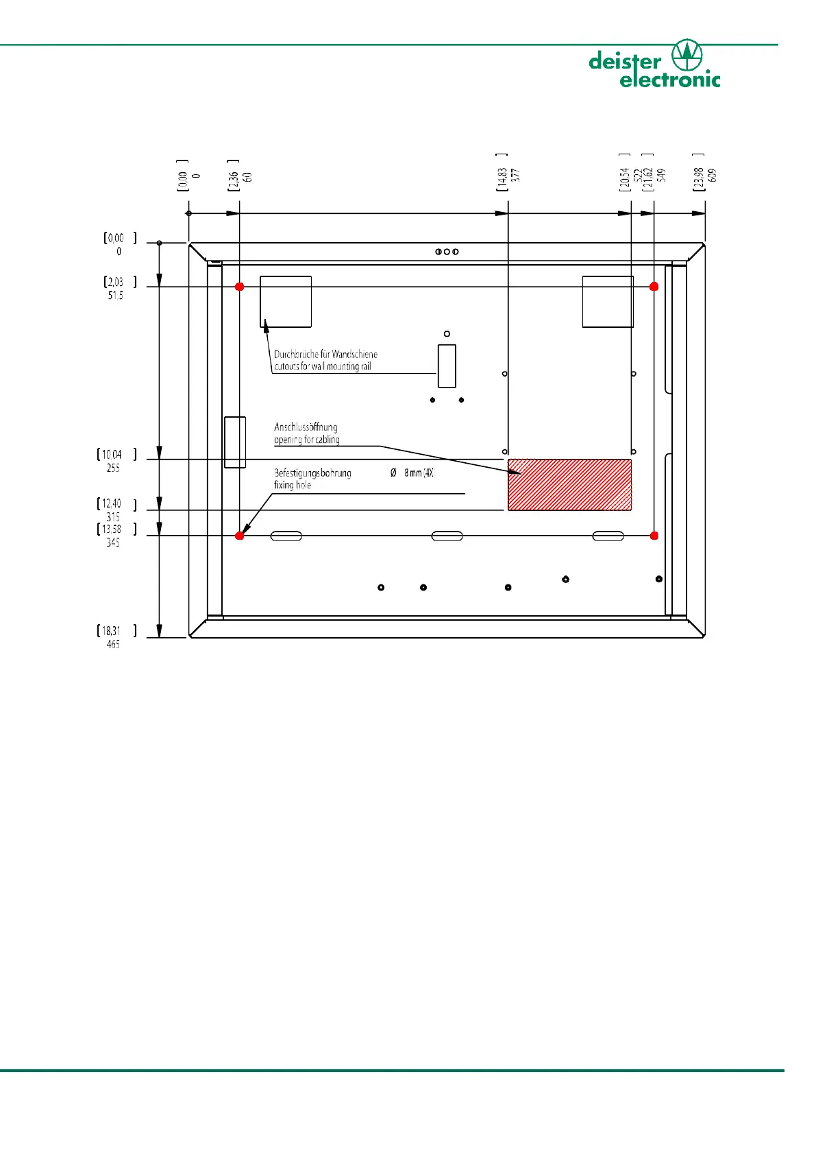
Wall mounting flexx 6U
V08/09/09
ps_flexx_wi_en
15
Picture 1: front view of proxSafe flexx 6U housing