EasyManua.ls Logo

Deister electronic proxSafe flexx - 3.4.2 Wall mounting flexx 12 U

Default Icon
44 pages
Print Icon
To Next Page IconTo Next Page
To Next Page IconTo Next Page
To Previous Page IconTo Previous Page
To Previous Page IconTo Previous Page
Loading...
proxSafe flexx
16
ps_flexx_wi_en
V08/09/09
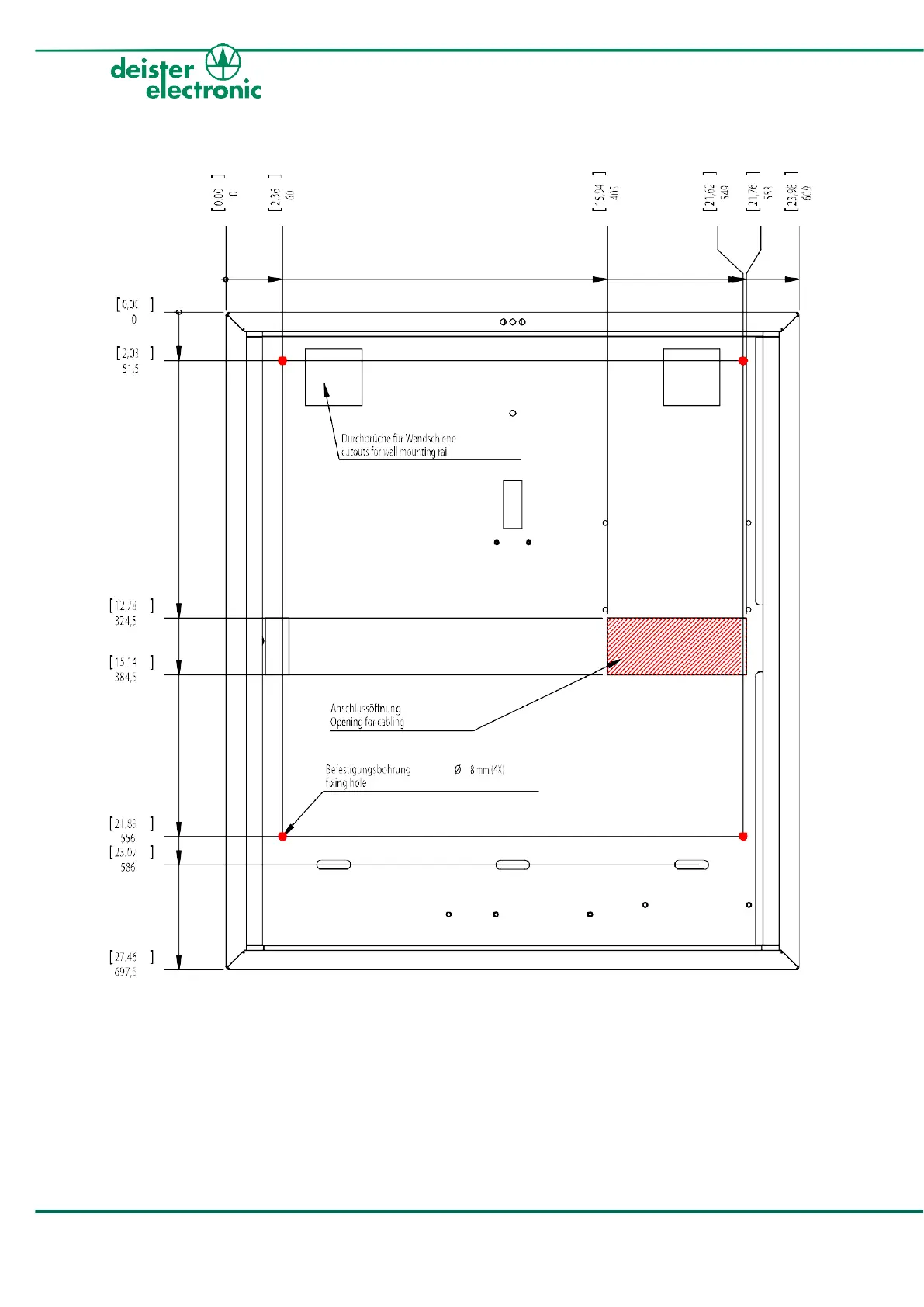
3.4.2 Wall mounting flexx 12U
Picture 2: front view of proxSafe flexx 12U housing