EasyManua.ls Logo

Delta M60U - Page 31

Delta M60U
130 pages
Print Icon
To Next Page IconTo Next Page
To Next Page IconTo Next Page
To Previous Page IconTo Previous Page
To Previous Page IconTo Previous Page
Loading...
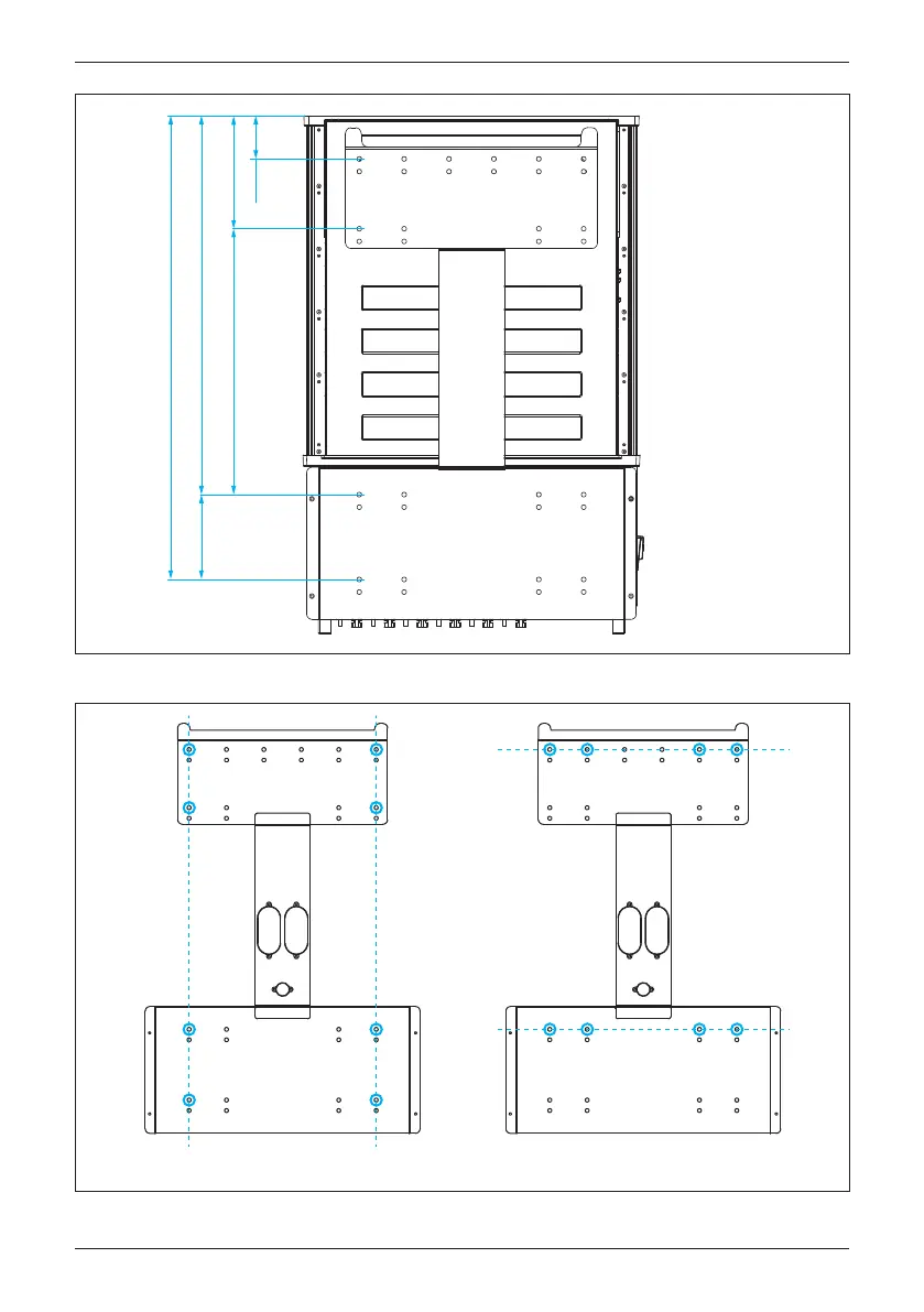
Necessary for vertical mounting Necessary for horizontal mounting
Figure 3-9: Required position for at least 8 screws for old models
Figure 3-8: Mounting base plate and rear view for old models
79mm
[3.1in]
206.5mm [8.1in]485.5mm [19.1in]
692mm [27.2in]
847mm [33.3in]
155mm [6.1in]
31
Installation

Table of Contents

Related product manuals