EasyManua.ls Logo

Delta VFD13AMS43ANSAA - Page 159

Delta VFD13AMS43ANSAA
805 pages
Print Icon
To Next Page IconTo Next Page
To Next Page IconTo Next Page
To Previous Page IconTo Previous Page
To Previous Page IconTo Previous Page
Loading...
Chapter 8 Option CardsMS300
150
The option cards in this chapter are optional accessories. Select the applicable option cards for your
motor drive, or contact your local distributor for suggestions. The option cards can significantly improve
the efficiency of the motor drive. To prevent damage to the motor drive during installation, remove the
digital keypad and the cover before wiring.
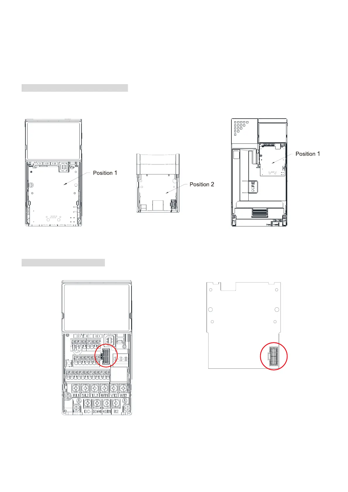
8-1 Option Card Installation
Mounting Position of Option Cards
Frame A–D
Mounting position 1, 2 (Option card mounting box)
Frame E and F
Mounting position 1
(Option card mounting box)
Figure 8-1
Figure 8-2
NOTE: Frame E and F do not support a second option card installation, so there is no mounting position 2.
The Wiring of Option Cards
MS300 control board connector
Option card connector
Figure 8-3
Figure 8-4
NOTE: Do NOT misuse the cables for the communication cards and the cables for the power card. You must
read the descriptions on the cables before wiring.

Table of Contents

Other manuals for Delta VFD13AMS43ANSAA

Related product manuals