EasyManua.ls Logo

Delta VFD25AMS43AFSHA - Frame C

Delta VFD25AMS43AFSHA
445 pages
Print Icon
To Next Page IconTo Next Page
To Next Page IconTo Next Page
To Previous Page IconTo Previous Page
To Previous Page IconTo Previous Page
Loading...
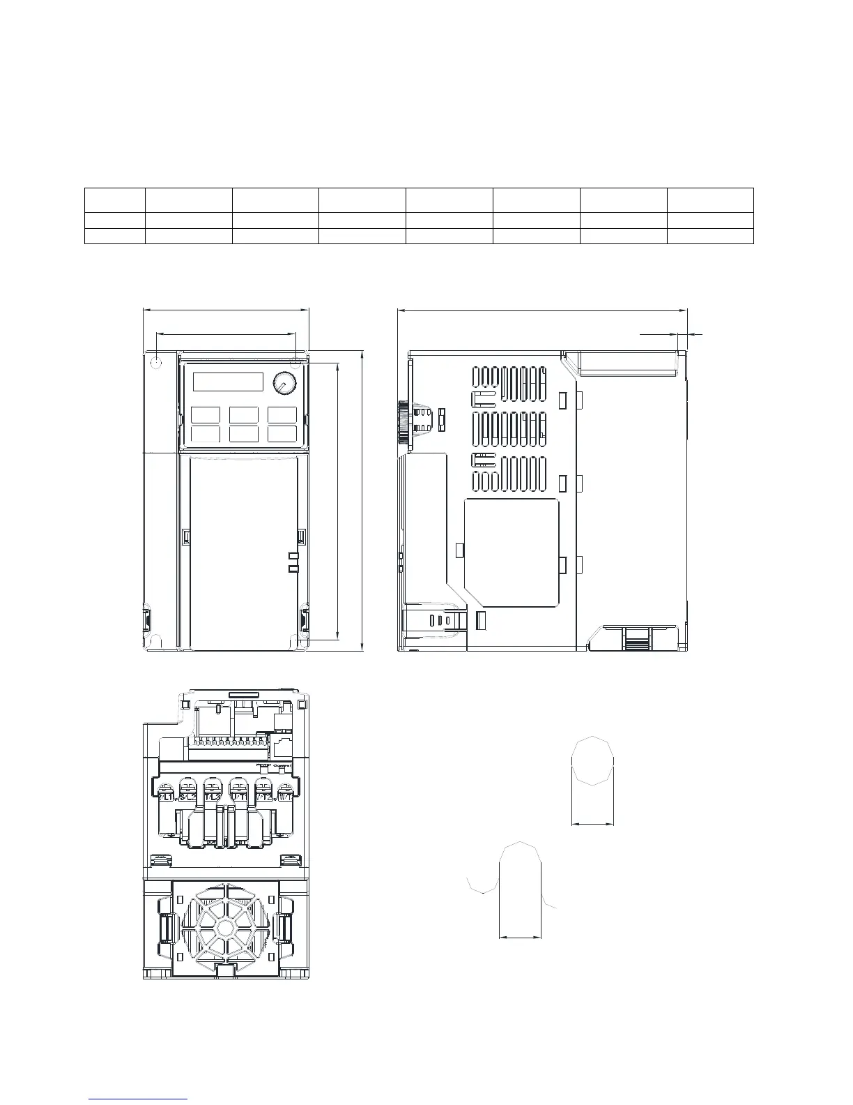
Chapter 2 Dimensions MS300 (High Speed Model)
2-2
Frame C
C1: VFD7A5MS21ANSHA; VFD7A5MS21ENSHA; VFD11AMS21ANSHA; VFD11AMS21ENSHA;
VFD11AMS23ANSHA; VFD11AMS23ENSHA; VFD17AMS23ANSHA; VFD17AMS23ENSHA;
VFD5A5MS43ANSHA; VFD5A5MS43ENSHA; VFD9A0MS43ANSHA; VFD9A0MS43ENSHA
C2: VFD7A5MS21AFSHA; VFD11AMS21AFSHA; VFD5A5MS43AFSHA; VFD9A0MS43AFSHA
Unit: mm [inch]
Frame W H D W1 H1 D1 S1
C1 87.0 [3.43] 157.0 [6.18] 152.0 [5.98] 73.0 [2.87] 144.5 [5.69] 5.0 [0.20] 5.5 [0.22]
C2 87.0 [3.43] 157.0 [6.18] 179.0 [7.05] 73.0 [2.87] 144.5 [5.69] 5.0 [0.20] 5.5 [0.22]
Mounting Hole
W1
W
H1
H
D
D1
S1
S1
Mounting Hole

Table of Contents

Related product manuals