EasyManua.ls Logo

Delta VFD25AMS43AFSHA - Conduit Box

Delta VFD25AMS43AFSHA
445 pages
Print Icon
To Next Page IconTo Next Page
To Next Page IconTo Next Page
To Previous Page IconTo Previous Page
To Previous Page IconTo Previous Page
Loading...
Chapter 7 Optional AccessoriesMS300 (High Speed Model)
7-31
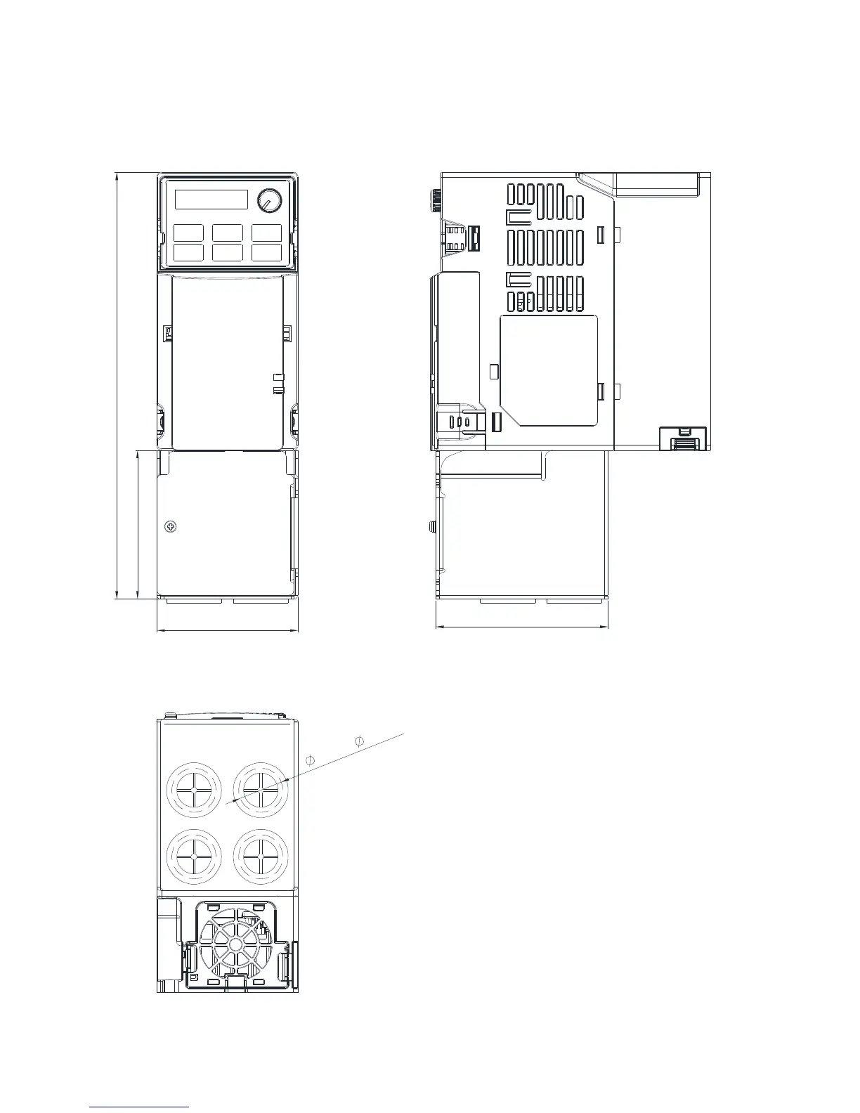
7-9 Conduit Box
Conduit box are in compliance with protection level NEMA 1 / UL Type 1
Frame B
Model of conduit box: MKM-CBB
76.0 [2.99]
2
1
8
.0
[
8
.5
8
]
71 9 2 83. [ . ]
87 7 3 45. [. ]
2
2
.
5
[
0
.
8
9
]
Unit: mm [inch.]

Table of Contents

Related product manuals