EasyManua.ls Logo

DIMOEL NewROTOR - Page 31

DIMOEL NewROTOR
Print Icon
To Next Page IconTo Next Page
To Next Page IconTo Next Page
To Previous Page IconTo Previous Page
To Previous Page IconTo Previous Page
Loading...
ENGLISH
C
onductive rubber edge
:
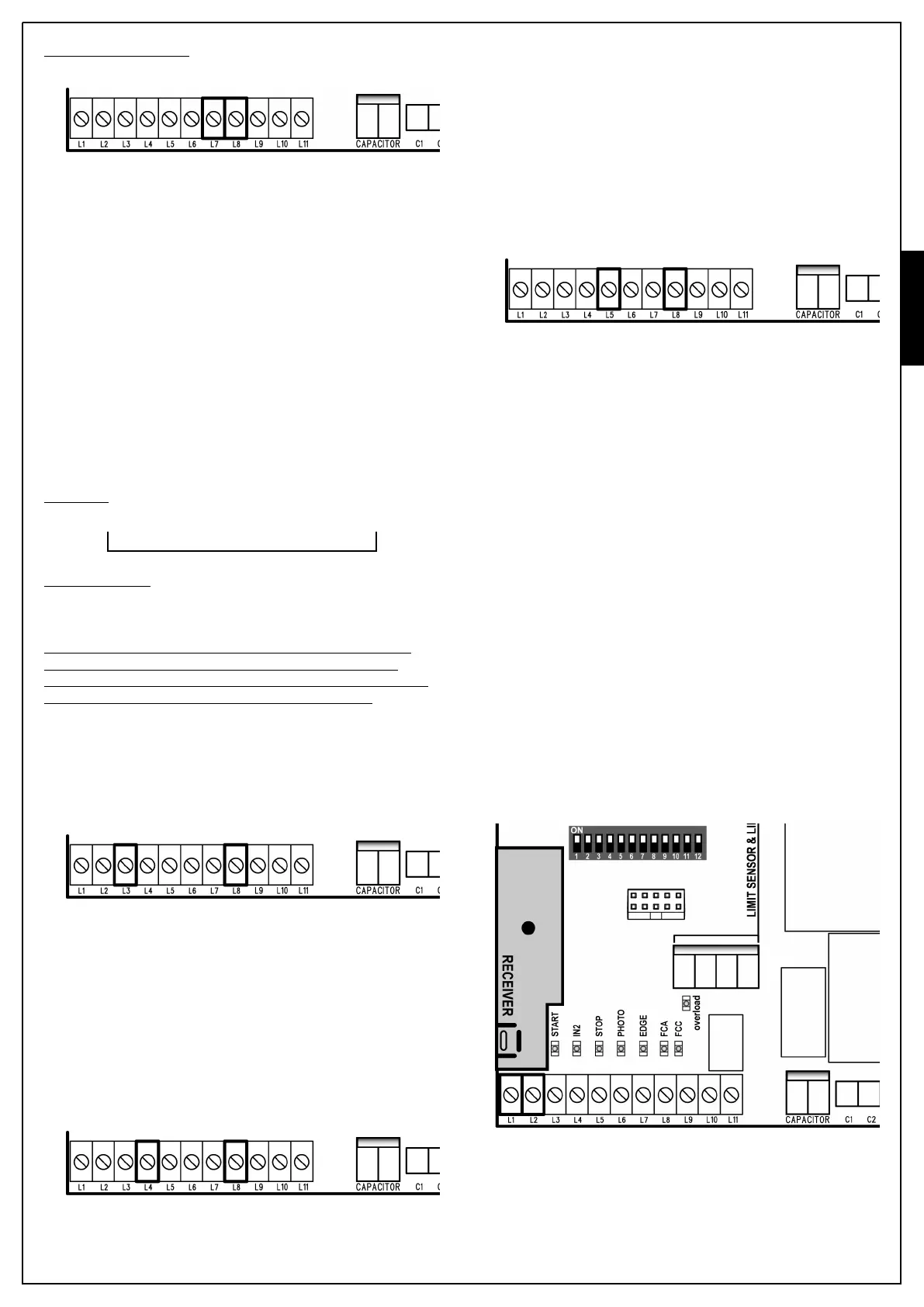
connect the edge cables between
terminals L7 and L8 on the control unit.
m PLEASE NOTE: operational testing on edges is reserved for
optical edges and standard edges (only if equipped with suitable
control units).
DO NOT enable testing if conductive rubber edges are used
or standard edges used without a suitable control unit for
controlling function.
m N
OTE: use the special interface (code 35A024) for
connection of the optical bars, de-activating the operational test
on the bars.
START INPUT
The START input is preset for connecting devices with the switch
normally open. Function depends on the mode of operation set
by means of dip-switch 4.
Step mode
Subsequent start commands cause, in order:
opening
stop
closure
stop
“Inversion” mode
Start during opening causes closure.
Start during closure causes opening.
Start with the gate open always results in closure;
The only case where this does not occur immediately is when
automatic closure is enabled and start while opening is not
accepted: in this specific case, start makes the pause time count
start from zero, after which the gate will be re-closed.
In both modes it is possible to disable the Start command during
gate opening by means of dip-switch 3.
Connect the start input control device cables between terminals
L3 and L8 on the control unit.
PEDESTRIAN START
With the gate closed, the pedestrian start causes partial opening
(approx. half way) of the gate. Subsequent pedestrian start
commands will function according to step logic.
During a pedestrian cycle, the start command causes the
complete opening of the gate.
Connect the start input control device cables between terminals
L4 and L8 on the control unit.
S
TOP
The STOP input is intended for devices with the switch normally
closed.
T
he STOP command causes the immediate stop of the gate.
A subsequent START command activates the gate in the opposite
direction of movement.
If the STOP command is given during opening or pause, then
there will be no subsequent automatic re-closure.
Connect the stop input control device cables between terminals
L5 and L8 on the control unit.
PLUG-IN RECEIVER
The control unit is suitable for plugging-in an MR1 series receiver
with high sensitivity super-heterodyne architecture.
m PLEASE NOTE: Disconnect the power to the control unit
before performing the following operations. Pay the utmost
attention to the direction of insertion of plug-in modules.
The MR1 receiver module has 4 channels, each with an
associated command on the PRGS2 control unit:
CHANNEL 1
쩚쩛
START
CHANNEL 2
쩚쩛
PEDESTRIAN START
CHANNEL 3
쩚쩛
STOP
CHANNEL 4
쩚쩛
COURTESY LIGHTS
m PLEASE NOTE:
Read the instructions supplied with the MR1 receiver thoroughly
for details on programming the 4 channels and the operational
logic.
EXTERNAL ANTENNA
It is recommended the external antenna be used in order to
guarantee maximum radio capacity.
Connect the antenna hot pole to terminal L1 of the control unit
and the braiding to terminal L2.
-27-

Related product manuals