EasyManua.ls Logo

Dimplex DFI2309 - Remote Control Operation; Remote Control Initialization; Battery Replacement

Dimplex DFI2309
21 pages
Print Icon
To Next Page IconTo Next Page
To Next Page IconTo Next Page
To Previous Page IconTo Previous Page
To Previous Page IconTo Previous Page
Loading...
10
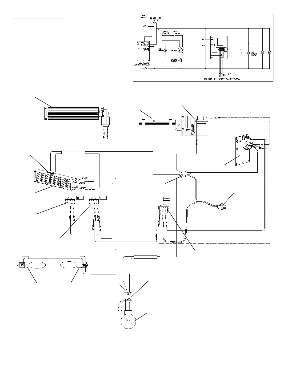
Wiring Diagram
DFI2310 MOD A to D
Blower
Flicker Motor
Lamp holders
Cutout
Cord Set
Terminal Block
Main On/Off/On Switch
Low Heat Switch
High
Heat Switch
Heater Elements
Terminal Block
LED Log Set Driver
Wire Harness to
Log Set
Remote
Receiver
Board

Other manuals for Dimplex DFI2309

Related product manuals