EasyManua.ls Logo

Dimplex DFI2309 - Fireplace Installation

Dimplex DFI2309
21 pages
Print Icon
To Next Page IconTo Next Page
To Next Page IconTo Next Page
To Previous Page IconTo Previous Page
To Previous Page IconTo Previous Page
Loading...
7
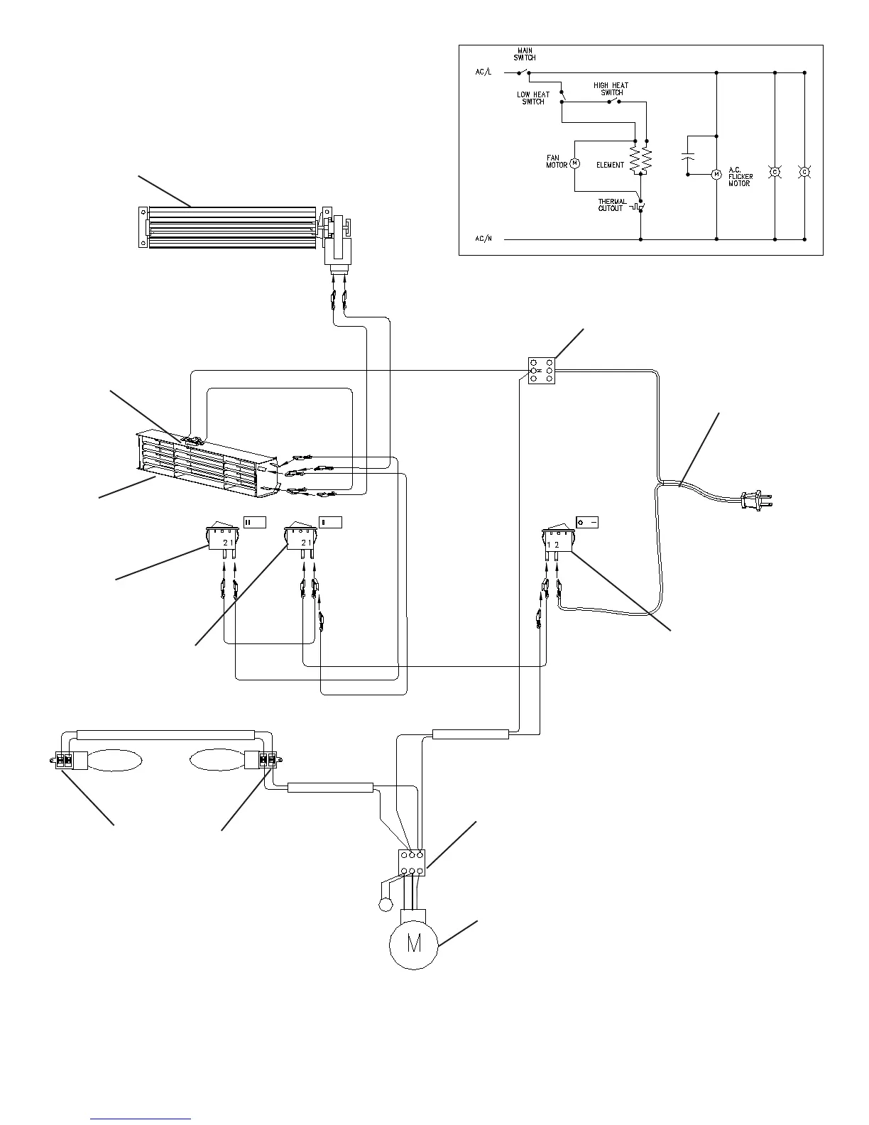
Wiring Diagram
DFI2309 MOD ~ to B
Flicker Motor
Lamp holders
Blower
Cutout
Power Cord
Terminal Block
Main
On/Off Switch
Low Heat Switch
High
Heat Switch
Heater Elements
Terminal Block

Other manuals for Dimplex DFI2309

Related product manuals