EasyManua.ls Logo

Dimplex SI 5MS - Stromlaufpläne; Circuit Diagrams; Schémas Électriques; Steuerung; Control; Commande

Dimplex SI 5MS
Print Icon
To Next Page IconTo Next Page
To Next Page IconTo Next Page
To Previous Page IconTo Previous Page
To Previous Page IconTo Previous Page
Loading...
A-VIII
Anhang · Appendix · Annexes
3
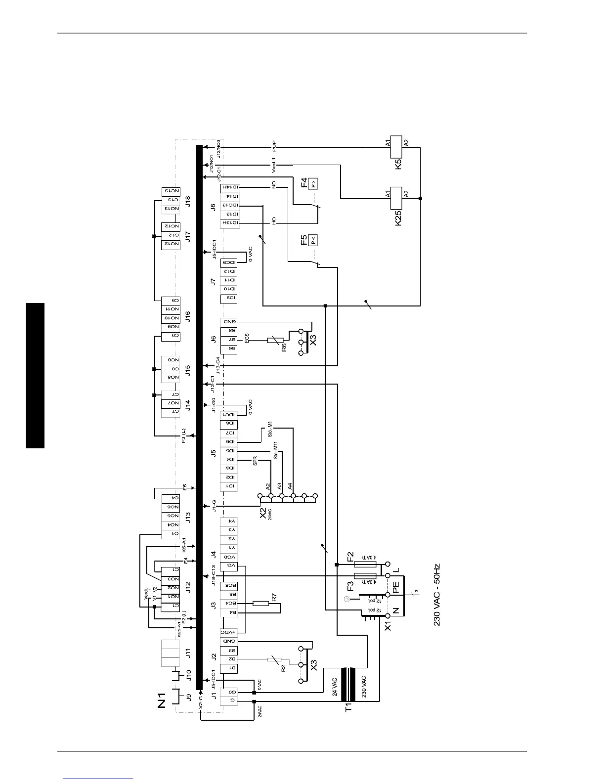
3 Stromlaufpläne / Circuit diagrams / Schémas
électriques
3.1 Steuerung / Control / Commande
1HW]Â0DLQVÂ5pVHDX

Table of Contents

Related product manuals