EasyManua.ls Logo

Dolphin DOLCWIUHFP - Instruction; Notice

Dolphin DOLCWIUHFP
14 pages
Print Icon
To Next Page IconTo Next Page
To Next Page IconTo Next Page
To Previous Page IconTo Previous Page
To Previous Page IconTo Previous Page
Loading...
User Manual of DOLCWIUHFP
9
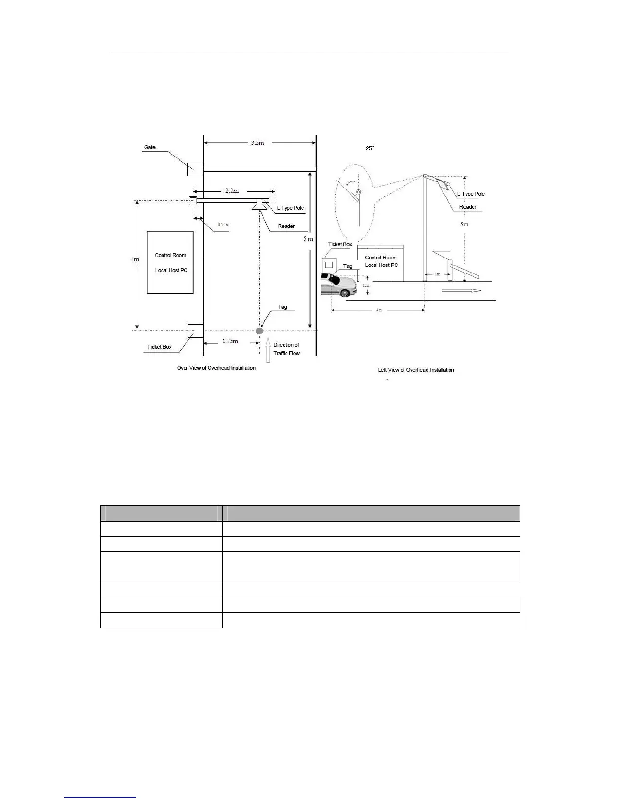
Figure2.4.1-1
2.4.2 Instruction
The instruction mentioned in the Table 2.4.2-1 is based on the example showed on the Figure
2.4.1-1, if not suitable for your site, you can contact with Transmitter Solutions for assistance.
Tabel 2.4.2-1
Description Overhead Installation
Install Height Over 5.0 m (See the Left View of Overhead Installation in the Figure 2.4.1-1)
Pole Type L type as the Left View of Overhead Installation in the Figure 2.4.1-1)
Pole Position(H) Over 0.25 m horizontal far from the edge of the lane (See Over View of Side
Installation in Figure 2.4.1-1
Pole Position(V) 1.0 m far in vertical from the Gate
Offset Angle with Pole
About 25
º(see figure 2.4.1-1)
Reader position (H) The center of the Reader is 1.75 m far from the edge of the Lane in horizontal
2.4.3 Notice
1. If the DC Power is not waterproof, it is suggested to insert into the Ticket Box or be
covered.
2. The dia of the extension power wire should be 2.0 mm" if the length is over 10.0 m.