EasyManua.ls Logo

Dometic B2600 - Page 272

Dometic B2600
334 pages
Print Icon
To Next Page IconTo Next Page
To Next Page IconTo Next Page
To Previous Page IconTo Previous Page
To Previous Page IconTo Previous Page
Loading...
30
Käyttäjän ohjekirja
FIN
B1600 - B1600PLUS - B2200 - B2600
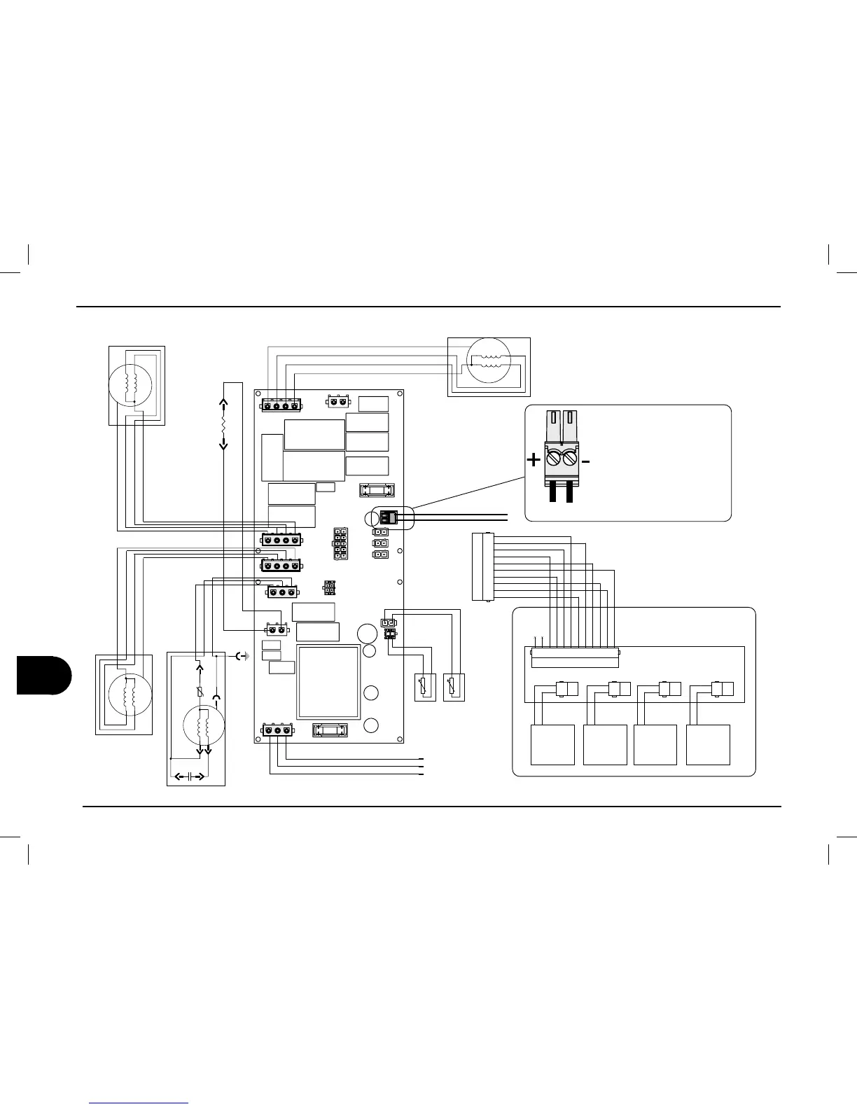
SÄHKÖKAAVIO B2600
NWO
R
B
E
U
L
B
N
E
E
RG-WO
L
L
E
Y
C
A
V032
LARTUEN - 2T
*
E
NI
L
-
1
T
*
1
2
3
DNUORG -
3
T
*
1
2
1
2
D
ER
NE
E
RG
NAYC
W
OL
L
E
Y
NW
OR
B
E
TIH
W
CK
A
L
B
EULB
Y
A
RG
TE
LOIV
RED
GREEN
CYAN
YELLOW
BROWN
WHITE
BLAK
BLUE
GRAY
VIOLET
xJ
1
2
3
4
5
6
7
8
9
01
3C3C
1
2
3
4
5
6
7
8
9
10
11
12
xJ
xC
1
2
Led
board
xJ
xC
1
2
Led
board
xJ
xC
1
2
Led
board
xJ
xC
1
2
Led
board
AIR DIFFUSER
VALVE
ORANGE
0/0''
0/0''
&$0/0.:
&$0/0.:
*/7&35&3
*/7&35&3
OPTIONAL CONNECTION
TO SWITCH ON THE AIR
DIFFUSER LIGHT ALSO
WHEN THERE IS NO MAIN.
PLEASE USE THE
PROVIDED CONNECTOR
PLUGGED IN THE BOARD
EUL
B
N
EERG-WOLLEY
D
E
R
KN
I
P
HCTI
W
S
OM
RE
T
HCTI
W
S
OM
RE
T
*
2F2F
*
1
2
3
*
4F4F
*
2
x
O 2
x
O
*
*
5F5F
*
F
u
xx F
u
xx
1
xO
1
xO
*
1F1F
*
*
3F3F
**
*
*
1
2
3
4
COMPRESSOR
N
EE
R
G-W
O
L
L
E
Y
N
EE
R
G-W
O
L
L
E
Y
K
C
A
L
B
NW
O
RB
EU
LB
1
2
3
4
FAN2 CONDERNSER
N
EE
R
G-W
O
L
L
E
Y
K
C
A
L
B
NW
O
RB
EU
LB
1
2
3
4
FAN1 CONDERNSER
KCALB
NWO
R
B
EUL
B
FAN EVAPORATOR
+ 12vdc BATTERY
- BATTERY
TEMPERATURE
PROBE
BATTERY
FUSE F2AL250V
MAIN FUSE F10AL250V
."*/'64&
."*/'64&
#"55&3:'64&
#"55&3:'64&
&7"1130#&
&7"1130#&
$0/%130#&
$0/%130#&
#"55&3:
#"55&3:
"694&3*"-
"694&3*"-
$0/%'"/
$0/%'"/
$0/%'"/
$0/%'"/
&7"1'"/
&7"1'"/
)00%
)00%
."*/
."*/
$0.13&4403
$0.13&4403
7"-7&
7"-7&
3&.05&
3&.05&
3&.05&
3&.05&
+
+

Table of Contents