EasyManua.ls Logo

Dometic Eskimo Ice EI540D - ELECTRICAL WIRING FOR 230 V 60 Hz MODELS & 220 V 50 Hz MODELS; WIRING DIAGRAM OVERVIEW

Dometic Eskimo Ice EI540D
30 pages
Print Icon
To Next Page IconTo Next Page
To Next Page IconTo Next Page
To Previous Page IconTo Previous Page
To Previous Page IconTo Previous Page
Loading...
Eskimo Ice Installation & Operation Manual
26 L-3040 ENGLISH
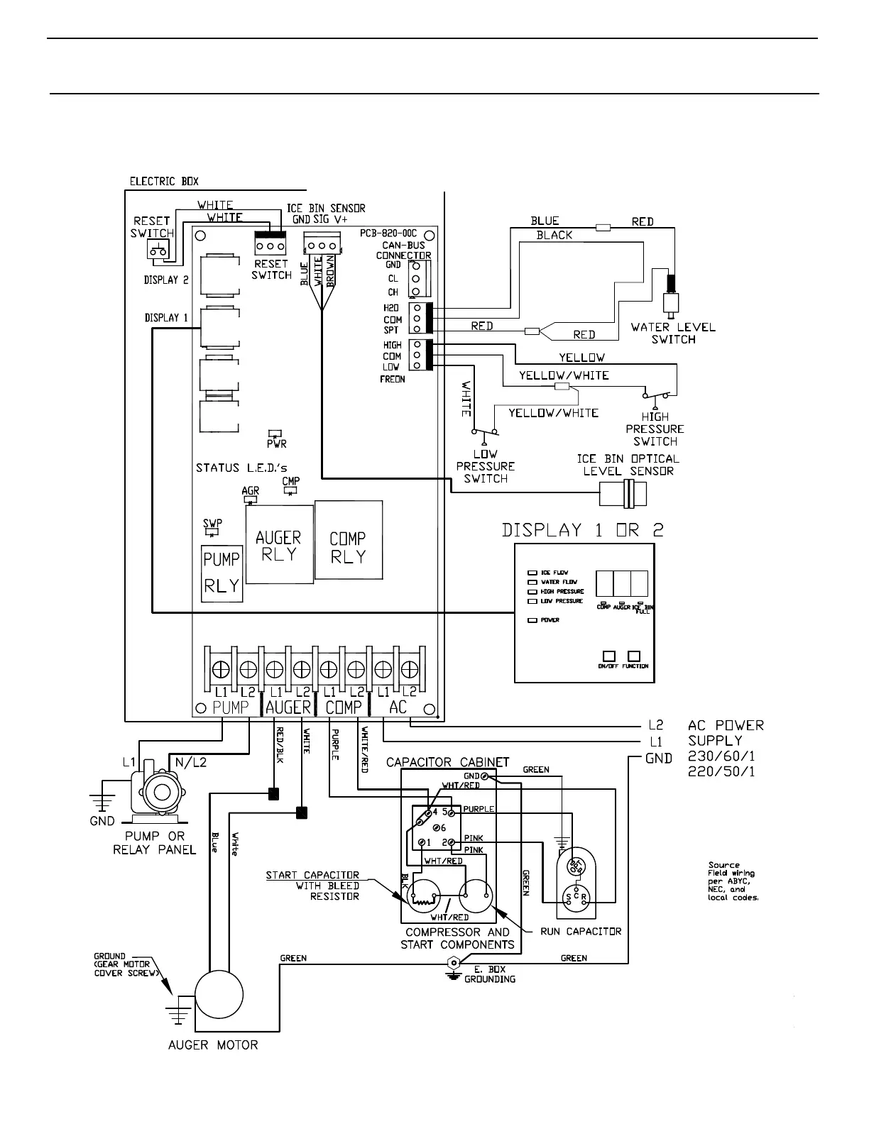
ELECTRICAL WIRING FOR 230V 60 HZ MODELS & 220V 50 HZ MODELS
Figure 16: Wiring Diagram for 230V 60Hz Models and 220V 50 Hz Models
DIAGRAMS

Table of Contents

Related product manuals