EasyManua.ls Logo

Dometic Slide Topper 9800 Series - Mounting Bracket Selection

Dometic Slide Topper 9800 Series
12 pages
Print Icon
To Next Page IconTo Next Page
To Next Page IconTo Next Page
To Previous Page IconTo Previous Page
To Previous Page IconTo Previous Page
Loading...
5
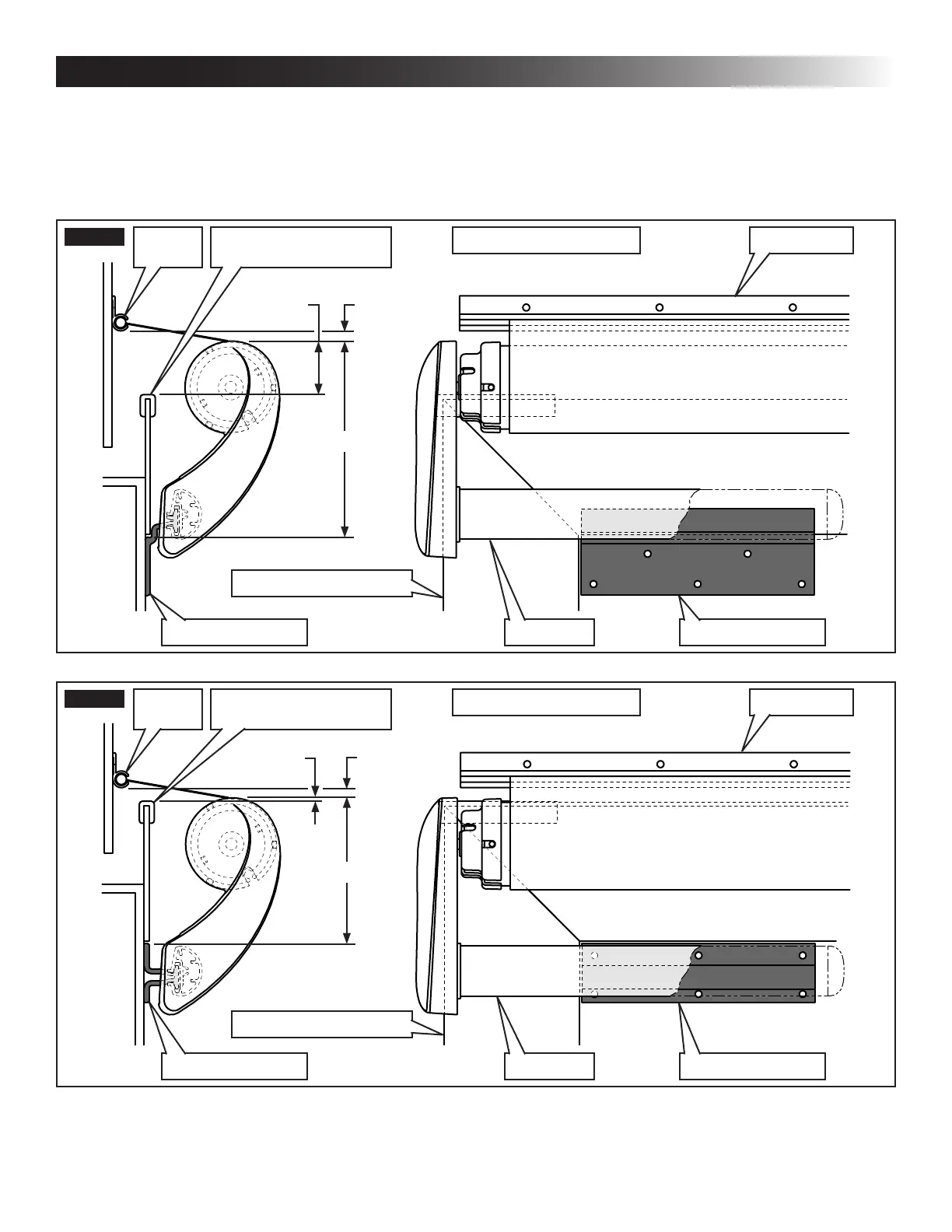
B. Mounting Bracket Selection
1. Determine mounting bracket type and conguration. See (FIG. 3) & (FIG. 4) below; (FIG. 5), & “Table 1” on
page (6).
Mounting brackets may be installed on slide out room ange ONLY if it provides solid structural support.
FIG. 3
Tall Mounting Bracket
A
Awning Rail
Awning
Rail
Mounting Bracket Extension
1/4″ Min.
1/2″ Min.
1 1/2″ Max.
Slide Out Room Flange
(With Edge Protector)
Slide Out Room Flange
Mounting Bracket
FIG. 4
Short Mounting Bracket
B
1/2″ Min.
1 1/2″ Max.
1/4″ Min.
Awning Rail
Awning
Rail
Mounting Bracket Extension
Slide Out Room Flange
(With Edge Protector)
Slide Out Room Flange
Mounting Bracket
SPECIFICATIONS

Related product manuals