EasyManua.ls Logo

Dorma ES 410 - Klemmendefinition; Terminal Definition

Dorma ES 410
26 pages
Print Icon
To Next Page IconTo Next Page
To Next Page IconTo Next Page
To Previous Page IconTo Previous Page
To Previous Page IconTo Previous Page
Loading...
WN 058022 45532
11/11
DORMA
Montageanleitung
Mounting instruction
ES 410 / 420
28 VAC
230 VAC
X2X1
4
3
1
2
5
7
6
1
12
13
24
X1
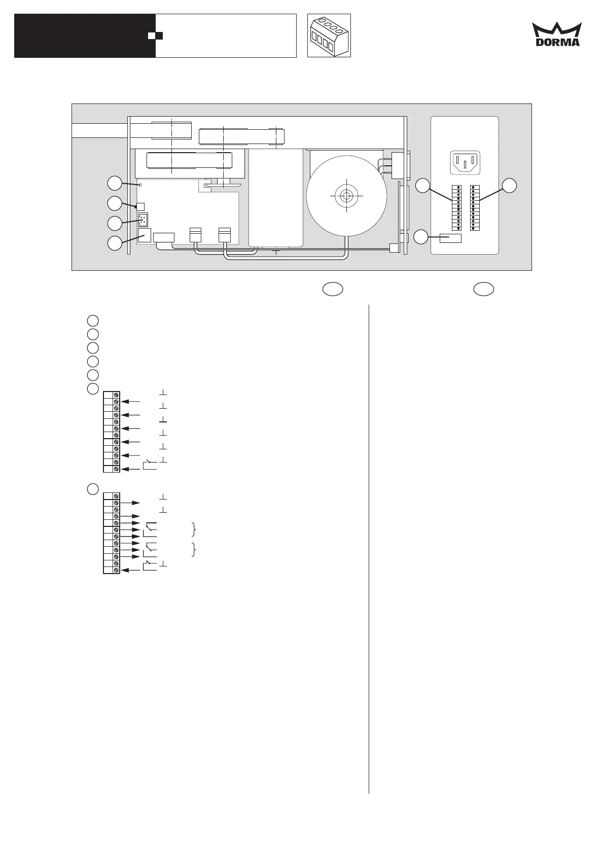
LED Spannungsanzeige
Resettaster
Busstecker
Programmierschnittstelle
Anschlußstecker für externe
Anschlußklemmen X1 und X2
DAUERAUF (Schliessimpuls)
TEIL-AUF (Schliessimpuls)
VOLL-AUF (Schliessimpuls)
SPERRUNG (der Steuerung bei
Schleusenbetrieb
TREIBRIEGELKONTAKT (Öffnerkontakt)
SONDEREINGANG (Schliesskontakt)
TÜR ZU (Wechsler) Schleuse
TÜR ZU (Wechsler) Schleuse
Lichtschranke (Öffnerkontakt)
1
2
3
4
5
6
7
8
9
10
11
12
13
14
15
16
17
18
19
20
21
22
23
24
D
Beschreibung und
Klemmendefinition
GB
Description and
Connection diagram
GND
+ 24 V DC
GND
+ 24 V DC
C
NC
NO
C
NC
NO
GND
GND
GND
GND
GND
GND
GND
X2
1
2
3
4
5
6
7
LED voltage display
Reset pushbutton
Bus connector
Program interface
Connector for external terminal strip X1 and X2
PERMANENT OPEN (closing pulse)
PARTIAL OPEN (closing pulse)
COMPLETELY OPEN (closing pulse)
LOCKING DEVICE(blocking of the controller
when airlockfunktion)
LATCH BOLT CONTACT (normally closed contact)
SPECIAL INPUT (normally open contact)
DOOR CLOSED (changeover contact) Airlock
DOOR CLOSED (changeover contact) Airlock
Light barrier (normally closed contact)
Klemmendefinition
terminal connections
ES 410 / 420
18
18

Table of Contents

Related product manuals