EasyManua.ls Logo

Dräger PSS BG 4 plus - Page 156

Dräger PSS BG 4 plus
163 pages
Print Icon
To Next Page IconTo Next Page
To Next Page IconTo Next Page
To Previous Page IconTo Previous Page
To Previous Page IconTo Previous Page
Loading...
9
RZ50e
Rev. 3
April 2005
E01827
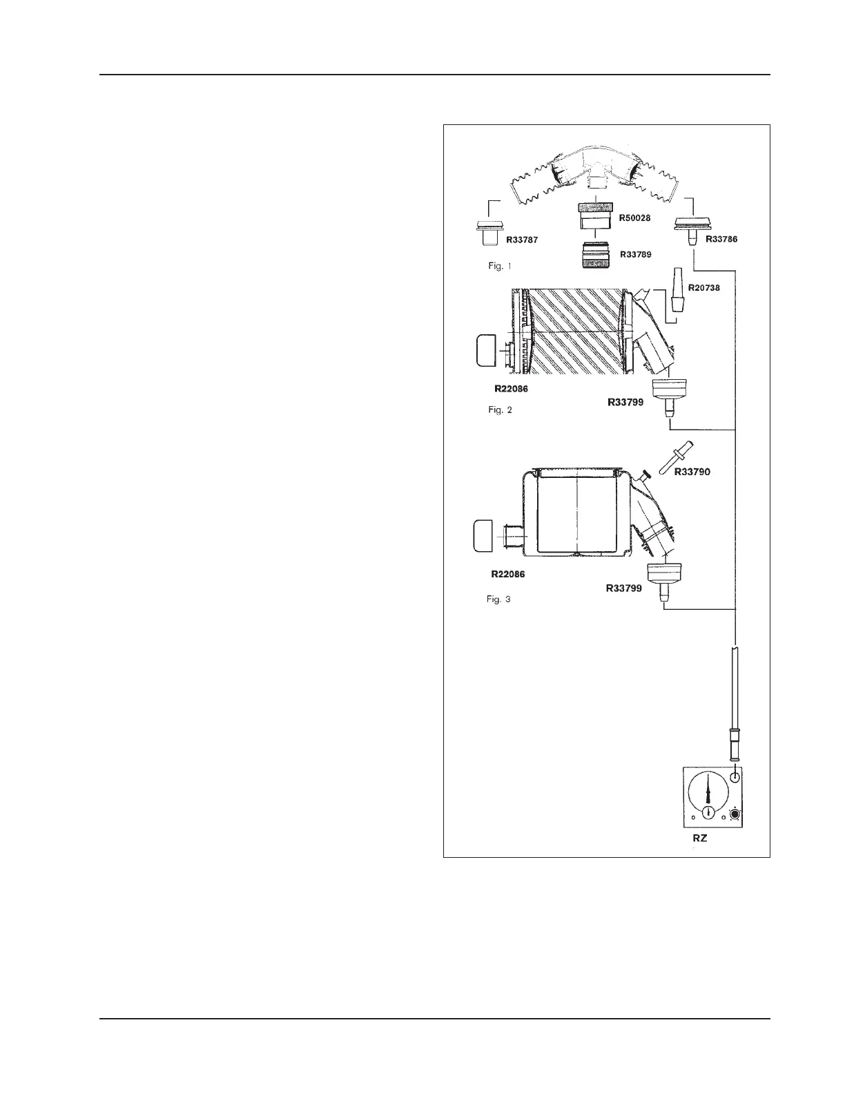
Component Checks
(with test kit complete R33777)
1.Equipment connector and breathing hoses
- Remove exhalation and inhalation hoses from the
CO absorber and breathing air cooler. Seal the
end of the exhalation hose using adapter R50028
and R33789.
- Put test plug R33787 into the end of exhalation
hose and R33786 into the end of inhalation hose
(Fig. 1).
- Test pressure between +7 mbar and +10 mbar
Pressure loss max. 1 mbar/min.
Locate leakages in water bath respectively with
leak detecting agent.
2.CO
2
Absorber
- Remove absorber.
- Sealing plug R20738 to relief valve connection
- Test cap R33799 to exhalation valve connection
- Sealing plug R22086 to breathing bag connection
- Connect absorber with RZ (Fig 2).
- Test pressure between +7 mbar and +10 mbar
Pressure loss max. 1 mbar/min.
Locate leakages with leak detecting agent.
3.Breathing air cooler (BG 4)
- Remove cooler.
- Remove Y-piece with dosage line and seal
connection using a sealing hose piece (by an air-
tightly welded hose piece or R33790).
- Sealing plug R33799 to inhalation hose connection
- Sealing plug R22086 to breathing bag connection
- Connect cooler with RZ (Fig. 3).
- Test pressure between +7 mbar and +10 mbar
Pressure loss max. 1 mbar/min.
Locate leakages in water bath respectively with
leak detecting agent.
Page 156
Draeger Training 11/16 rev 1

Table of Contents

Related product manuals