EasyManua.ls Logo

DSC PC3OOO - Hookup Diagrams

DSC PC3OOO
44 pages
Print Icon
To Next Page IconTo Next Page
To Next Page IconTo Next Page
To Previous Page IconTo Previous Page
To Previous Page IconTo Previous Page
Loading...
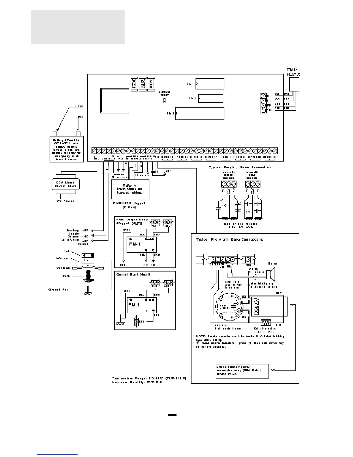
HOOKUP DIAGRAMS
36

Table of Contents

Related product manuals