EasyManua.ls Logo

DSE DSE7320 - Phase (L1 & L2) 3 Wire Without Earth Fault

Default Icon
160 pages
Print Icon
To Next Page IconTo Next Page
To Next Page IconTo Next Page
To Previous Page IconTo Previous Page
To Previous Page IconTo Previous Page
Loading...
DSE7200 / 7300 Series Operators Manual
52
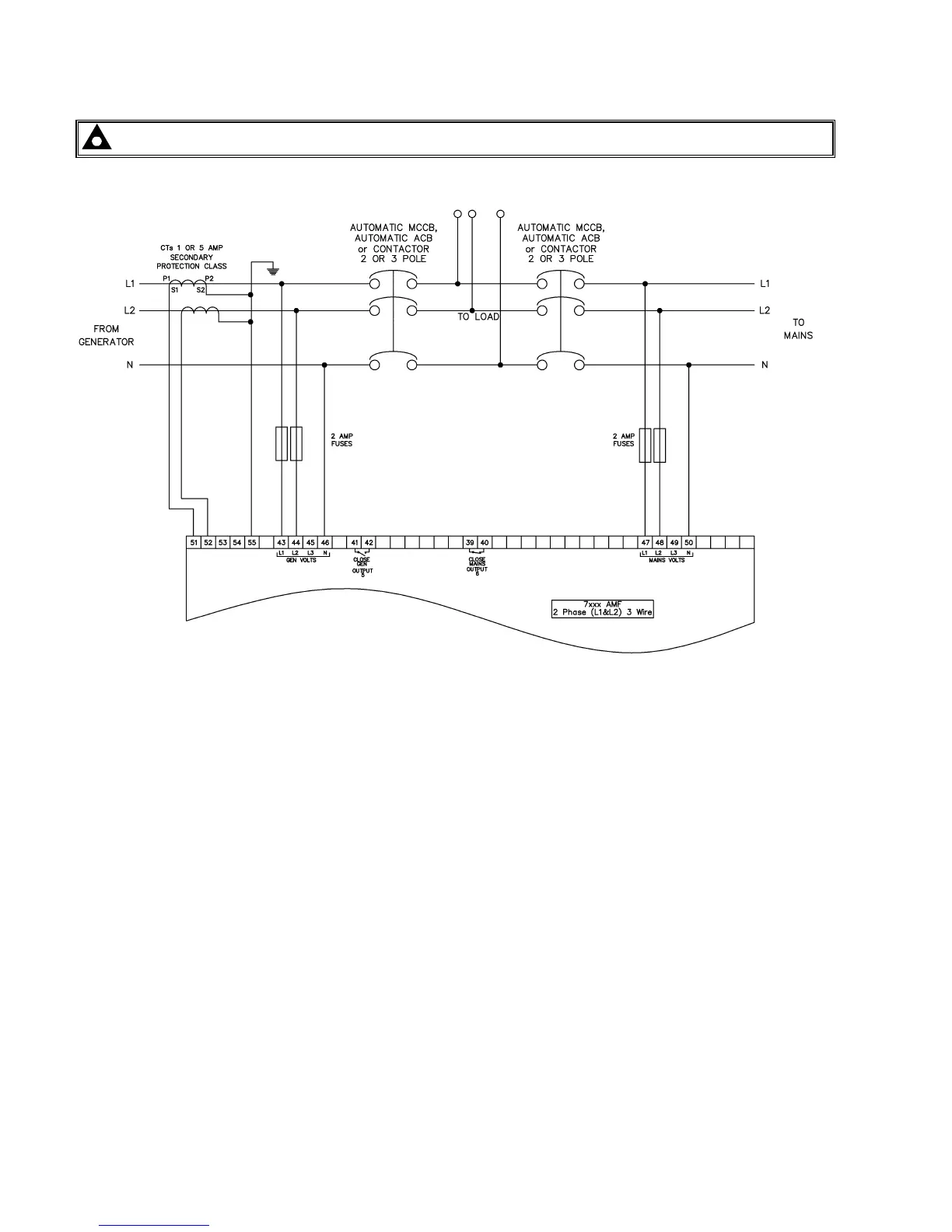
4.4.5 2 PHASE (L1 & L2) 3 WIRE WITHOUT EARTH FAULT
NOTE:- Mains sensing (Terminals 47-50) is not fitted to DSE7210/ DSE7310 autostart controllers.

Table of Contents

Related product manuals