EasyManua.ls Logo

Dunkirk DCBF-100 - Page 111

Dunkirk DCBF-100
138 pages
Print Icon
To Next Page IconTo Next Page
To Next Page IconTo Next Page
To Previous Page IconTo Previous Page
To Previous Page IconTo Previous Page
Loading...
28
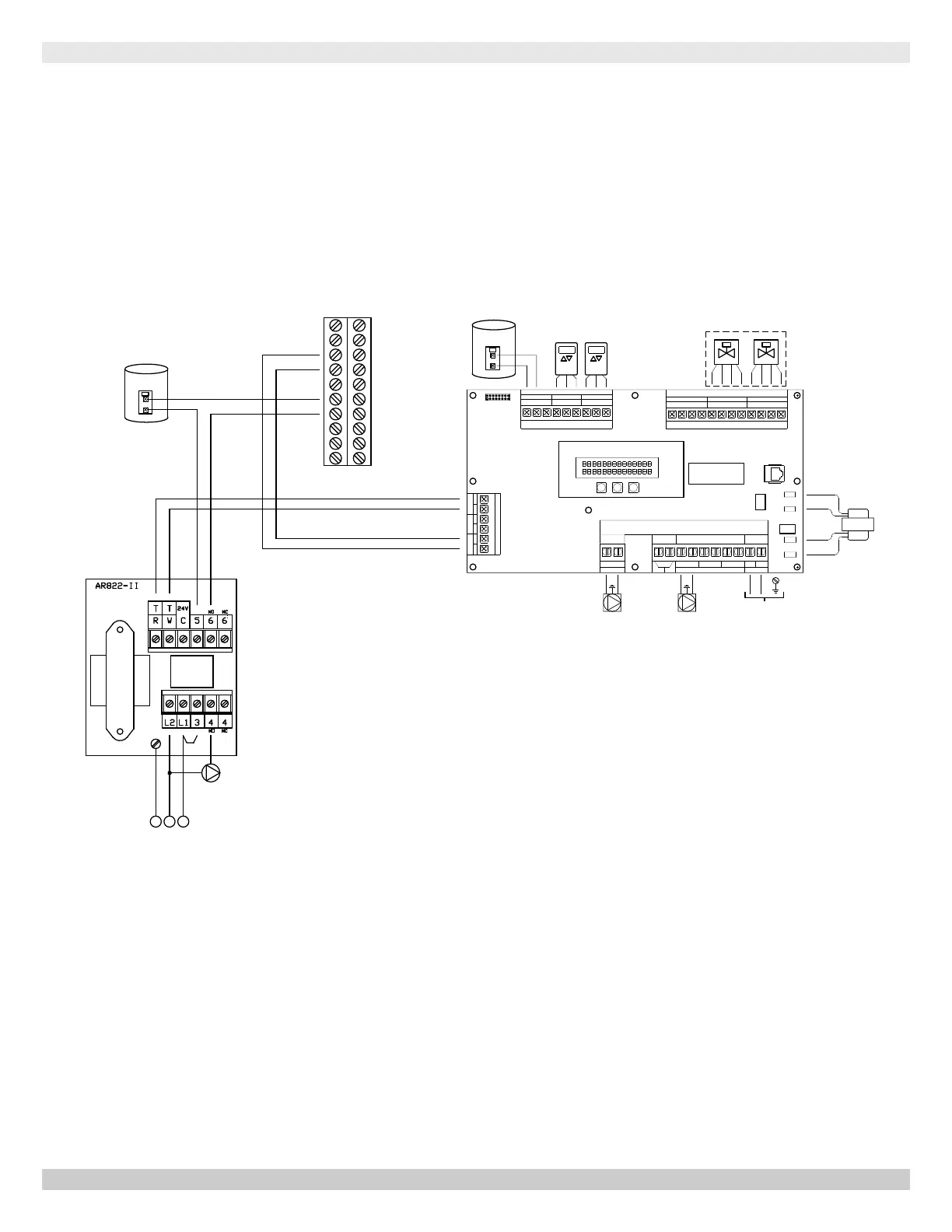
EXTERNAL BUFFER TANK - WIRING DIAGRAM
Buffer Tank Pump Wiring
Controlling A Primary Pump On A Combi Boiler
With Zone Valves and Indirect Tank With Priority,
Argo UZ3 and AR822-II Zone Controls
ZONE 1
LINE
24V
Vac
L
C
R
115 Vac
NL
1
N
115
COM
Vac
ZRZC
NL
3
NL
2
115 Vac
N
L
1
L
N
ZONE PUMPS
XXXXX
32
1
X
NEC Class 2 Low Voltage
ZONE 3ZONE 2
ZONE 1
W
R
NEC Class 2 Low Voltage
T
T
C
THERMOSTATS
ZONE VALVES
ZONE 3ZONE 2
43214321432
1
NEC Class 2 Low Voltage (24Vac)
W
R
T
T
C
W
R
T
T
C
PRI PUMP ZC/ZR
DIGITAL LCD USER DISPLAY
Fuse
ZONE MODULE
TO EXPANSION
Transformer
PTC
12A 250V
Buffer Tank
115 Vac FIELD SUPPLIED
POWER PER NEC
AND LOCAL CODES
PRIMARY
PUMP
ZONE
THERMOSTATS
ZONE VALVES
VANNES DE ZONE
4 Wire Valve
12 34 12 34
CH
N L1
G
FIELD SUPPLIED
POWER PER NEC
AND LOCAL CODES
PUMP
DHW
PUMP
1
2
3
4
6
7
8
5
9
10
M2
Domestic Hot
Water Tank
UZ3
Zone Control
PN 240012875 REV. B [07/01/2021]

Table of Contents

Related product manuals