EasyManua.ls Logo

Dunkirk DXL-125 - Page 8

Dunkirk DXL-125
32 pages
Print Icon
To Next Page IconTo Next Page
To Next Page IconTo Next Page
To Previous Page IconTo Previous Page
To Previous Page IconTo Previous Page
Loading...
8
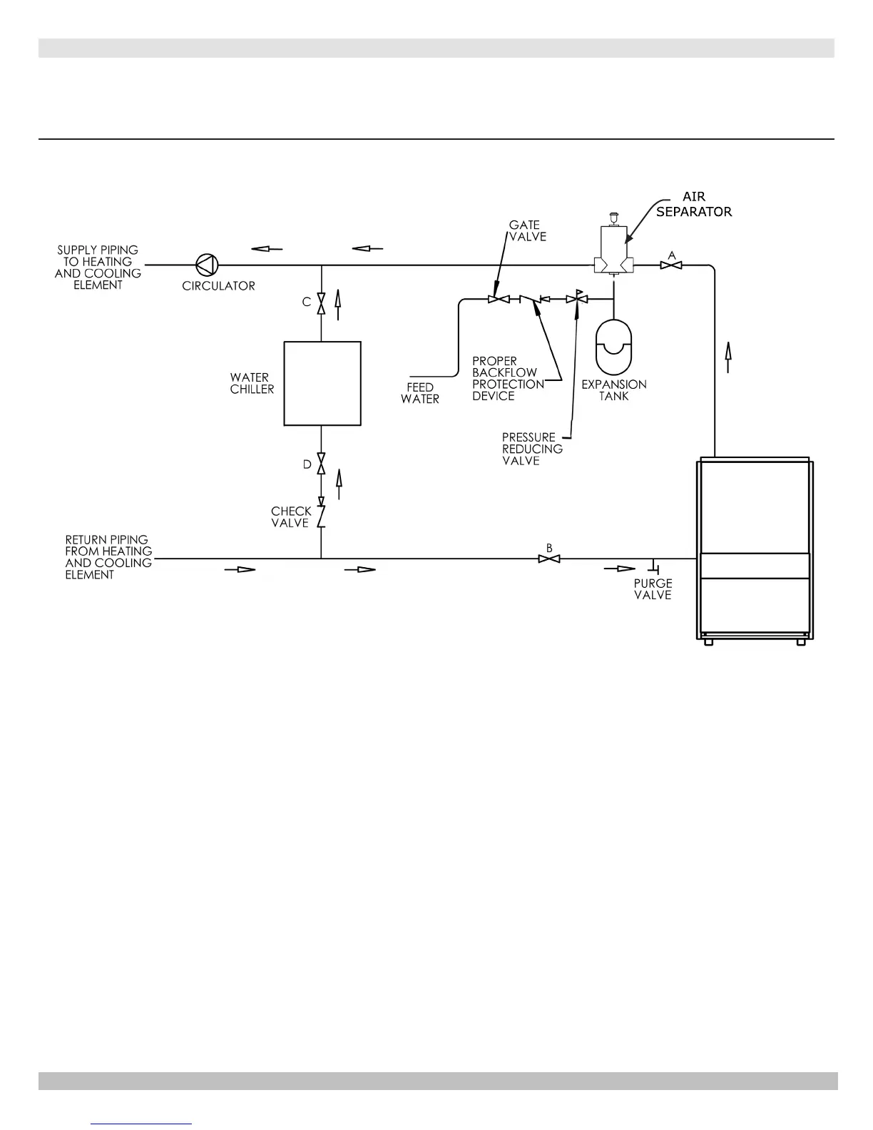
Circulators in following illustrations are mounted on system supply side, mounting on system return side is
also acceptable practice.
AIR
SEPARATOR
1.
Boiler, used in connection with a refrigeration system,
must be installed so chilled medium is piped in parallel
with boiler with appropriate valves to prevent chilled
medium from entering boiler. See Figure 4.
2.
Boiler piping system of hot water boiler connected to
heating coils located in air handling units where they
may be exposed to refrigerated air circulation must be
equipped with ow control valves or other automatic
means to prevent gravity circulation of boiler water
during cooling cycle.
3.
Hot water boilers installed above radiation level or
as required by authority having jurisdiction must be
provided with a low water cut-off device.
4.
When a boiler is connected to a heating system that
utilizes multiple zoned circulators, each circulator must
be supplied with a ow control valve to prevent gravity
circulation.
5.
Hot water boilers and system must be lled with water
and maintained to a minimum pressure of 12 psi.
6.
Bypass piping is an option which gives the ability
to adjust the supply boiler water temperature to t
the system or the condition of the installation. This
method of piping, however, is not typically required for
baseboard heating systems. Typical installations where
bypass piping is used are as follows:
A. This method is used to protect boilers from
condensation forming due to low temperature
return water. Generally noticed in large converted
gravity systems or other large water volume
systems. Figure 5 & 6, Page 9.
B. These methods are used to protect systems using
radiant panels and the material they are encased in
from high temperature supply water from the boiler
and protect the boiler from condensation.
NOTE#1: When using bypass piping, adjust
valves V1 & V2 until desired system temperature
is obtained. See Figure 6 page, 9.
NOTE#2: Bypass loop must be same size piping
as the supply and return piping.
SUPPLY AND RETURN PIPING
Figure 4 - Circulators Mounted on Supply System, Boiler Used In Conguration with Chiller
System. See Special Conditions, Page 9
P/N 240009041, Rev. C [04/30/2017]

Related product manuals