EasyManua.ls Logo

Ecoflam Blu 5000.1 PR - Page 19

Ecoflam Blu 5000.1 PR
20 pages
Print Icon
To Next Page IconTo Next Page
To Next Page IconTo Next Page
To Previous Page IconTo Previous Page
To Previous Page IconTo Previous Page
Loading...
pag.58
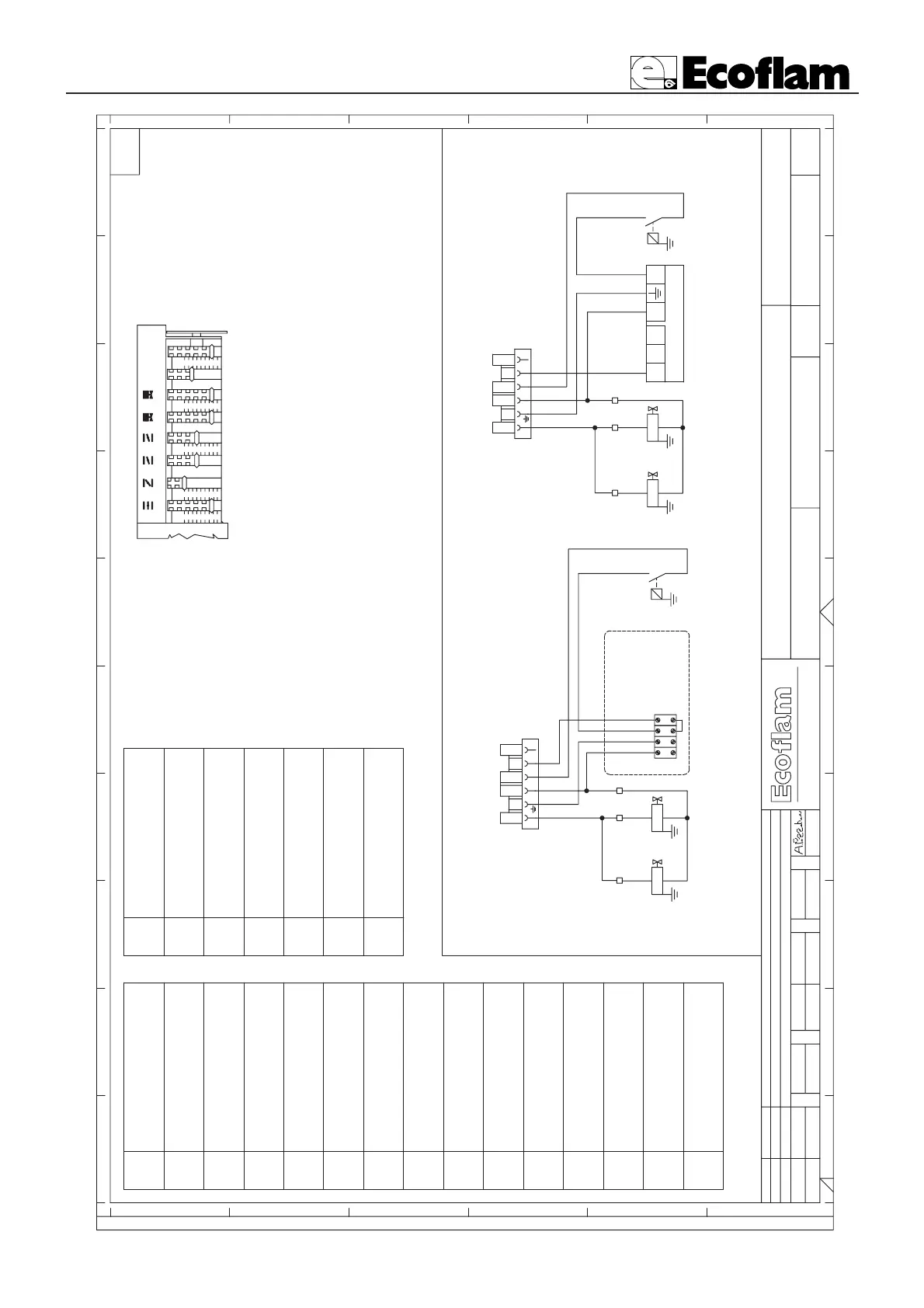
ABCD LB 832 BLU 5000.1 - 6000.1 PR / MD
ESPIA DE BLOQUEO
LAMPE DE SECURITE
LOCK-OUT LAMP
ESPIA DE FUNCIONAMIENTO
LAMPE DE FONCTIONNEMENT
WORKING LAMP
TELERRUPTOR MOTOR VENTILATOR
CONTACTEUR MOTEUR VENTILATEUR
REMOTE CONTROL SWITCH (FAN MOTOR)
INTERRUPTOR DE LINEA
INTERRUPTEUR DE LIGNE
WORKING SWITCH
PRESOSTATO AIRE
PRESSOSTAT AIR
AIR PRESSURE SWITCH
PRESSOSTATO ARIA
INTERRUTTORE DI LINEA
CONTATTORE MOTORE VENTILATORE
LAMPADA DI FUNZIONAMENTO
LAMPADA DI BLOCCO
SPA
SAL
KMV
HLF
HLB
ELECTRODO DE IONIZACION
ELECTRODE D'IONISATION
IONISATION PROBE
SONDA PASIVA
SONDE PASSIVE
USING PASSIVE
SONDA EXTERIOR
SONDE EXTERIEURE
OUTDOOR PROBE
SONDA ESTERNA
SONDA PASSIVA
SONDA SCTIVA
SONDE SCTIVE
USIN GATTIVE
SONDA ATTIVA
INTERRUPTOR GENERAL CON FUSIBLE
INTERRUPTEUR GENERAL AVEC FUSIBLE
MAIN SWITCH WITH FUSE
FILTRO DE PROTECION ANTIDISTURBIO
FILTRE ANTIPARASITES
ANTJAMMING FILTER
MOTOR VENTILADOR
MUTEUR VENTILATEUR
MOTOR FAN
TRANSFORMADOR
TRANSFORMATEUR D'ALLUMAGE
IGNITION TRANSFORMER
RELE' TERMICO MOTOR VENTILADOR
RELAIS THERMIQUE MOTEUR VENTILATEUR
MOTOR THERMAL RELAY (FAN MOTOR)
RELE' TERMICO MOTORE VENTILATORE
TRASFORMATORE
MOTORE VENTILATORE
ELETTRODO DI RIVELAZIONE
FILTRO ANTIDISTURBO
INTERRUTTORE GENERALE CON FUSIBILE
FUSIBLE
FMV
TV
SE
SA
SP
MV
FUSIBLE
FU
FUSE
FUSIBILE
ER
Z
Q
INTERRUPTEUR MANUEL-AUTOMATIQUE
ESPIA DE BLOQUEO RELE TERMICO
LAMPE DE THERMAL DE SECURITE
THERMAL LOCK-OUT LAMP
LAMPADA DI BLOCCO TERMICO
ELETTROVALVOLA GAS DI SICUREZZA
EXTRA SAFETY GAS SOLENOID VALVE
ELECTROVANNE GAZ DE SECURITE
ELECTROVALVULA GAS DE SEGURIDAD
PRESSOSTATO GAS DI MINIMA
CONMUTADOR MANUAL-AUTOMATICO
GAS PRESSURE SWITCH MIN
PRESSOSTAT GAZ PRESSION MIN
PRESOSTATO GAS DE MINIMA POT.
SPGmin
HLBT
YVGS
ELECTROVALVULA DE GAS
COMMUTATORE MANUALE-AUTOMATICO
SWITCH (MANUAL-AUTOMATIC))
TERMOSTATO DE SEGURIDAD
THERMOSTAT DE SECURITE
TERMOSTATO DI SICUREZZA
ELETTROVALVOLA GAS
GAS SOLENOID VALVE
ELECTROVANNE GAZ
SAMA
YVG
TERMOSTATO CALDERA
THERMOSTAT CHAUDIERE
BOILER THERMOSTAT
SAFETY THERMOSTAT
STS
TERMOSTATO CALDAIASTC
BLUE
YELLOW-GREEN
BLACK
BROWN
CONTROLE D'ETANCHEITI
CONTROL DE ESTANQUIDAD
PREDISPOSICION
PREVU POUR LE
PREDISPOSED
LEKAGE CONTROL
PREDISPOSIZIONE
CONTROLLO DI TENUTA
T
P
T
P
PAGINA DI
IND.MODIFICA
SOST.DA
SOST.IL
IND.MOD.
PROPRIETA' RISERVATA DELLA DITTA ECOFLAM S.p.A.
DATA-FIRMA
DATA
FIRMA
CONTROLLATO
DESCRIZIONE MODIFICA
DISEGNATO
DATA
FIRMA
COMUNICARE A TERZI IL CONTENUTO DEL PRESENTE.A TERMINE DI LEGGE E' VIETATO RIPRODURRE O
CONTROLLO DI TENUTAAPPARECCHIATURA
UFF.TECNICO-SETTORE ELETTRICO
DENOMINAZIONE
SIST. RIVELAZ. CODICE
MOTORIDUTTORE
S.p.A.
00 01 02 03 04 05 06 07 08 09
A
00 01 02 03 04 05 06 07 08 09
B
C
D
E
A
B
C
D
E
BEM08092
MODULAIR P 3000.1-P 4000.1-P 5000.1-P 6000.1 LANDIS SQM 50.481A2
LANDIS LFL1.622 DUNGS VPS 504 ER
10-11-2003
2/2
VI
CAMMA NON UTILIZZATA
CAMMA NON UTILIZZATA
CAMMA DI REGOLAZIONE ARIA ALTA FIAMMA
CAMMA REGOLAZIONE ARIA BASSA FIAMMA
CAMMA DI REGOLAZIONE ARIA FIAMMA DI ACCENSIONE
CAMMA DI REGOLAZIONE ARIA CHIUSURA TOTALE
CAMMA NON UTILIZZATA
CAMMA NON UTILIZZATA
(0) V:
(0) VI:
(0) VIII:
(0) VII:
(0) II:
(70) I:
(30) IV:
(20) III:
III
0 0
IV
III
0
V
0
VIIIVII
0
YVG
P1
S3
P1
YVGS
L1 T1N
N
T2
SPGmin
BLACK
YELLOW-GREEN
BLUE
BROWN
DUNGS VDK 200-A
YVG YVGS
1413 31
SPGmin
P1 P1 N
T1L1 N S3T2

Related product manuals