EasyManua.ls Logo

Edwards GXS 160/1750 - Gxs750;2600; Figure 48 GXS750;2600 Installation Drawing (Sheet 1)

Edwards GXS 160/1750
180 pages
To Next Page IconTo Next Page
To Next Page IconTo Next Page
To Previous Page IconTo Previous Page
To Previous Page IconTo Previous Page
Loading...
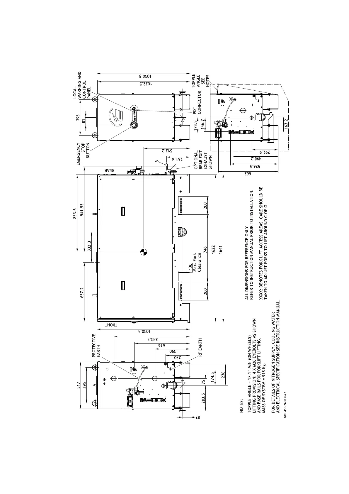
8.9 GXS750/2600
Figure 48 GXS750/2600 installaon drawing (Sheet 1)
CS/5269/A
Page 112
M58800880_H - Installaon drawings

Table of Contents

Related product manuals