EasyManua.ls Logo

Edwards GXS 160/1750 - Gxs160;1750; Figure 20 GXS160;1750 Installation Drawing (Sheet 1)

Edwards GXS 160/1750
180 pages
To Next Page IconTo Next Page
To Next Page IconTo Next Page
To Previous Page IconTo Previous Page
To Previous Page IconTo Previous Page
Loading...
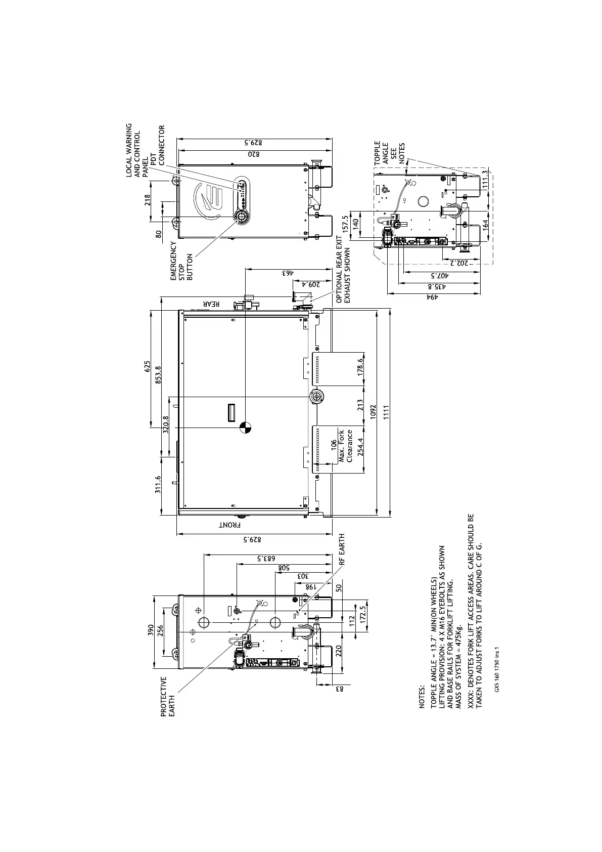
8.2 GXS160/1750
Figure 20 GXS160/1750 installaon drawing (Sheet 1)
CS/5334/A
Page 84
M58800880_H - Installaon drawings

Table of Contents

Related product manuals