EasyManua.ls Logo

Electrolux 30" - Page 51

Electrolux 30"
140 pages
Print Icon
To Next Page IconTo Next Page
To Next Page IconTo Next Page
To Previous Page IconTo Previous Page
To Previous Page IconTo Previous Page
Loading...
51
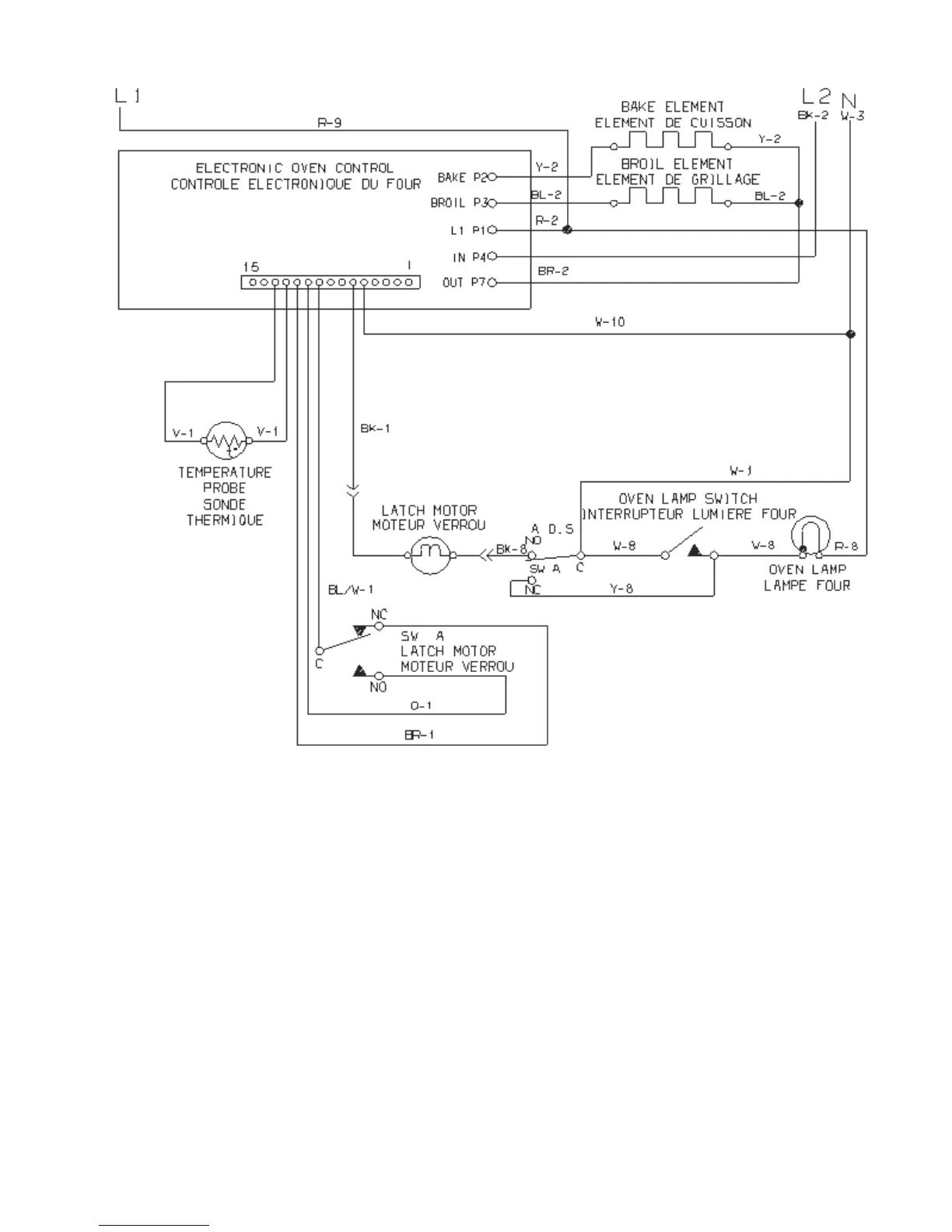
SAMPLE SCHEMATIC FOR THE ES 200 CONTROL SYSTEM

Table of Contents

Other manuals for Electrolux 30"

Related product manuals