EasyManua.ls Logo

Electrolux WP4 700H - Page 25

Electrolux WP4 700H
72 pages
Print Icon
To Next Page IconTo Next Page
To Next Page IconTo Next Page
To Previous Page IconTo Previous Page
To Previous Page IconTo Previous Page
Loading...
Installation manual
25
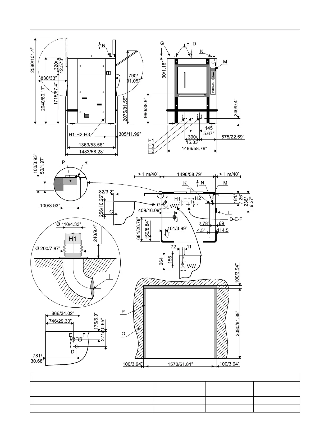
Washer extractor type 700 one door (Diagram 07100140 and 07100141)
Units WP4 700 WPB4 700
Drum diameter mm / 1050 / 41.33” 1050 / 41.33”
Drum length
mm / 794 / 31.26” 794 / 31.26”
Drum volume litre 685 685

Related product manuals