EasyManua.ls Logo

Electrolux WP4 700H - Washer Extractor Type 700

Electrolux WP4 700H
72 pages
Print Icon
To Next Page IconTo Next Page
To Next Page IconTo Next Page
To Previous Page IconTo Previous Page
To Previous Page IconTo Previous Page
Loading...
24
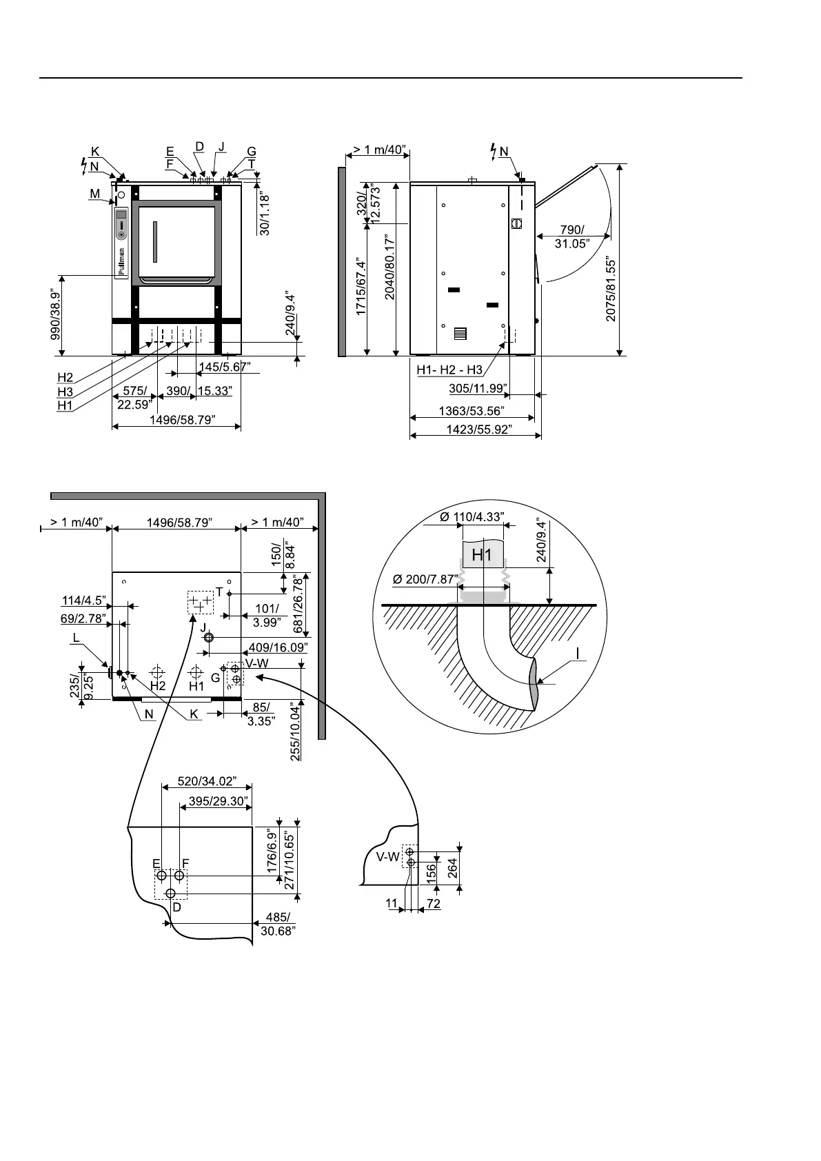
Installation manual
6.2 Washer extractor type 700
One door WP4 700H: Drawing 07100140
Barrier WPB4 700H: Drawing 07100141

Related product manuals