EasyManua.ls Logo

Electrolux WP4 700H - Washer Extractor Type 900

Electrolux WP4 700H
72 pages
Print Icon
To Next Page IconTo Next Page
To Next Page IconTo Next Page
To Previous Page IconTo Previous Page
To Previous Page IconTo Previous Page
Loading...
30
Installation manual
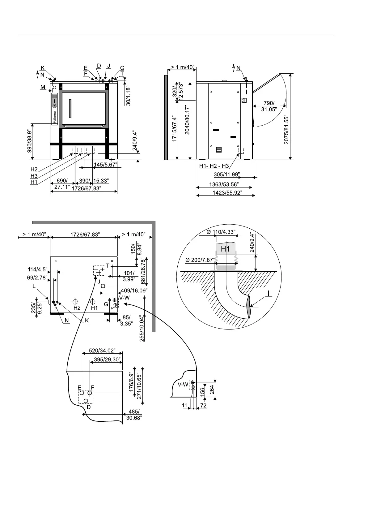
6.4 Washer extractor type 900
One door WP4 900H: Drawing 07100138

Related product manuals