EasyManua.ls Logo

Electrolux WP4 700H - Page 31

Electrolux WP4 700H
72 pages
Print Icon
To Next Page IconTo Next Page
To Next Page IconTo Next Page
To Previous Page IconTo Previous Page
To Previous Page IconTo Previous Page
Loading...
Installation manual
31
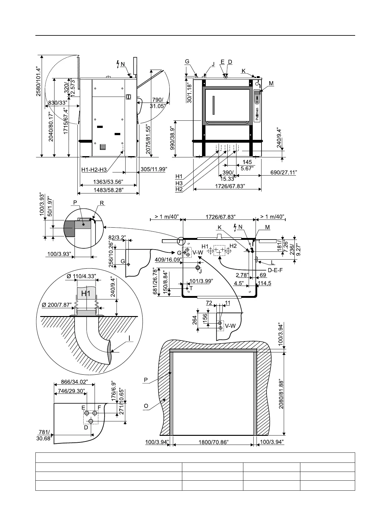
Barrier WPB4 900H: Drawing 07100139
Washer extractor type 900 (Diagram 07100138 and 07100139)
Units WP4 900 WPB4 900
Drum diameter mm / 1050 / 41.33” 1050 / 41.33”
Drum length
mm / 1026 / 40.39” 1026 / 40.39”

Related product manuals