EasyManua.ls Logo

Electrolux WSB4250H - Page 24

Electrolux WSB4250H
168 pages
Print Icon
To Next Page IconTo Next Page
To Next Page IconTo Next Page
To Previous Page IconTo Previous Page
To Previous Page IconTo Previous Page
Loading...
07100087B
1009 7
8
Notice
Date
Page
01201138
INSTRUCTION
HANDBOOK
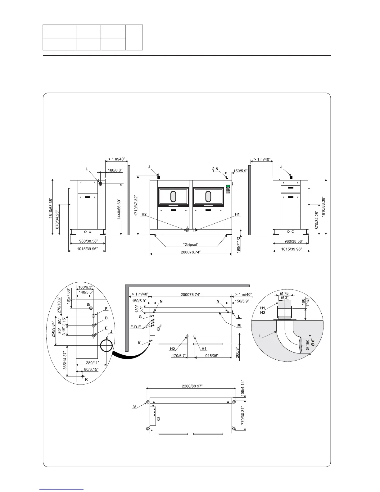
8.Technical
characteristics
Washer extractor type 650 standard
Top view
Drain connection
Front viewRight view Left view

Table of Contents

Related product manuals