EasyManua.ls Logo

Electrolux WSB4250H - To Change Parameters in the Current Program Step; Auto Restart

Electrolux WSB4250H
168 pages
Print Icon
To Next Page IconTo Next Page
To Next Page IconTo Next Page
To Previous Page IconTo Previous Page
To Previous Page IconTo Previous Page
Loading...
0107 9
11
Notice
Date
Page
01201138
INSTRUCTION
HANDBOOK
Additional functions during the program
Rapid advance (see section « Rapid advance »)
Rapid advance through the program to the program
step required. Rapid advance can be used to move
both forwards and backwards through the program.
Pause (see section « Pause »)
The machine stops. The drain valve remains
closed. Alternative method for pausing during pro-
gram :
Press
.
Manual functions (see section « Manual operation
during program operation »)
The following functions can be controlled manually
during the course of the program :
- all water valves, drain and pumps (where applica-
ble).
- limit highest extraction speed.
- motor on/off after end of wash program.
- fl ush detergent.
Text (see section « Text »)
Display description of wash program (if available).
Select a different wash program (see section "To
change the wash program after program operation
has commenced")
You can switch to using a different wash program at
any stage during the wash. Once this function has
been selected, the current step (for example, rinse)
of the earlier program will be allowed to fi nish and
then the new program will start (from the begin-
ning).
Change temperatures scale °C or °F (see section
« To change temperatures scale °C/°F »)
Auto restart (see section « Auto restart »)
Here you enter the number of times you wish the
wash program to restart automatically.
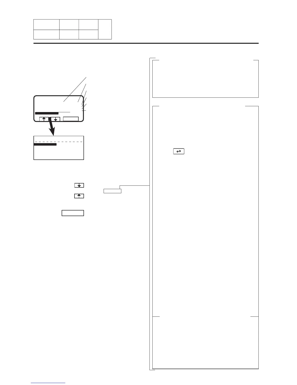
To change parameters in the current program
step :
Certain program step parameters can be altered
during the course of the program. In the example
(left), the length of the program step and the heating
temperature can be altered.
The following information is
displayed during the wash
program :
Current program step
Time left for this program step
Set temperature
Actual temperature
Remaining program time
Drum speed
If required :
Select a function using the
cursor keys.
Press SELECT.
To terminate a program before it has fi nished
Select RAPID ADVANCE and press SELECT.
Advance to « END OF PROGRAM » and press
SELECT.
Wait until « THE DOOR IS OPEN » appears on the
display.
Now the door can be opened.
11. Machine
operation
SELECT
STEP TIME
SET TEMPERATURE
RAPID ADVANCE
PAUSE
MANUAL FUNCTIONS
TEXT
SELECT NEW WASH PROGRAM
CHANGE °F/°C
AUTO RESTART
PROGRAM STEP : MAIN WASH 1
STEP TIME : 720 SEC
SET TEMPERATURE : 85 °C
ACTUAL TEMPERATURE : 21 °C
REMAINING TIME : 70 MIN
DRUM SPEED : 48 RPM
991 NORMAL 95 °C STD
RAPID ADVANCE :
PAUSE
SELECT

Table of Contents

Related product manuals