EasyManua.ls Logo

Electrolux WSB4250H - Gas Connection

Electrolux WSB4250H
168 pages
Print Icon
To Next Page IconTo Next Page
To Next Page IconTo Next Page
To Previous Page IconTo Previous Page
To Previous Page IconTo Previous Page
Loading...
D0651A
0107 14
9
Notice
Date
Page
01201138
INSTRUCTION
HANDBOOK
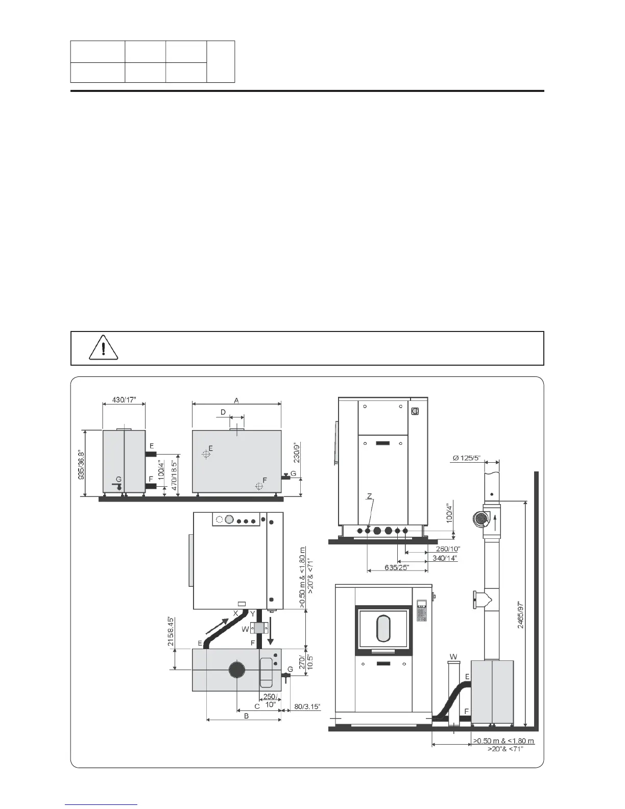
9. Installation
Machine type Units
A Length of exchanger mm/inch 1110/43.7"
B Dimension of output exchanger mm/inch 1040/41"
C Dimension of evacuation pipe mm/inch 645/25.39"
D Evacuation of burn gas mm/inch Ø 125/5"
E Exchanger bottom output mm/inch Ø 36/40 (1"1/2)
F Exchanger bottom input mm/inch Ø 36/40 (1"1/2)
G Gas connection mm/inch DN 20 (3/4" BSP)
W Filter
X Input machine/exchanger ( higher plug on the tank)
Y Output machine/exchanger (lower plug on the tank)
Z Hole for electric cable to gas exchanger
Top view
Side view
Front view
The gas exchanger pump must always be connected to the lower plug on the
tank.

Table of Contents

Related product manuals