EasyManua.ls Logo

Electrolux WSB4250H - Indirect Steam Heating

Electrolux WSB4250H
168 pages
Print Icon
To Next Page IconTo Next Page
To Next Page IconTo Next Page
To Previous Page IconTo Previous Page
To Previous Page IconTo Previous Page
Loading...
1107 11
9
D1524
Notice
Date
Page
01201138
INSTRUCTION
HANDBOOK
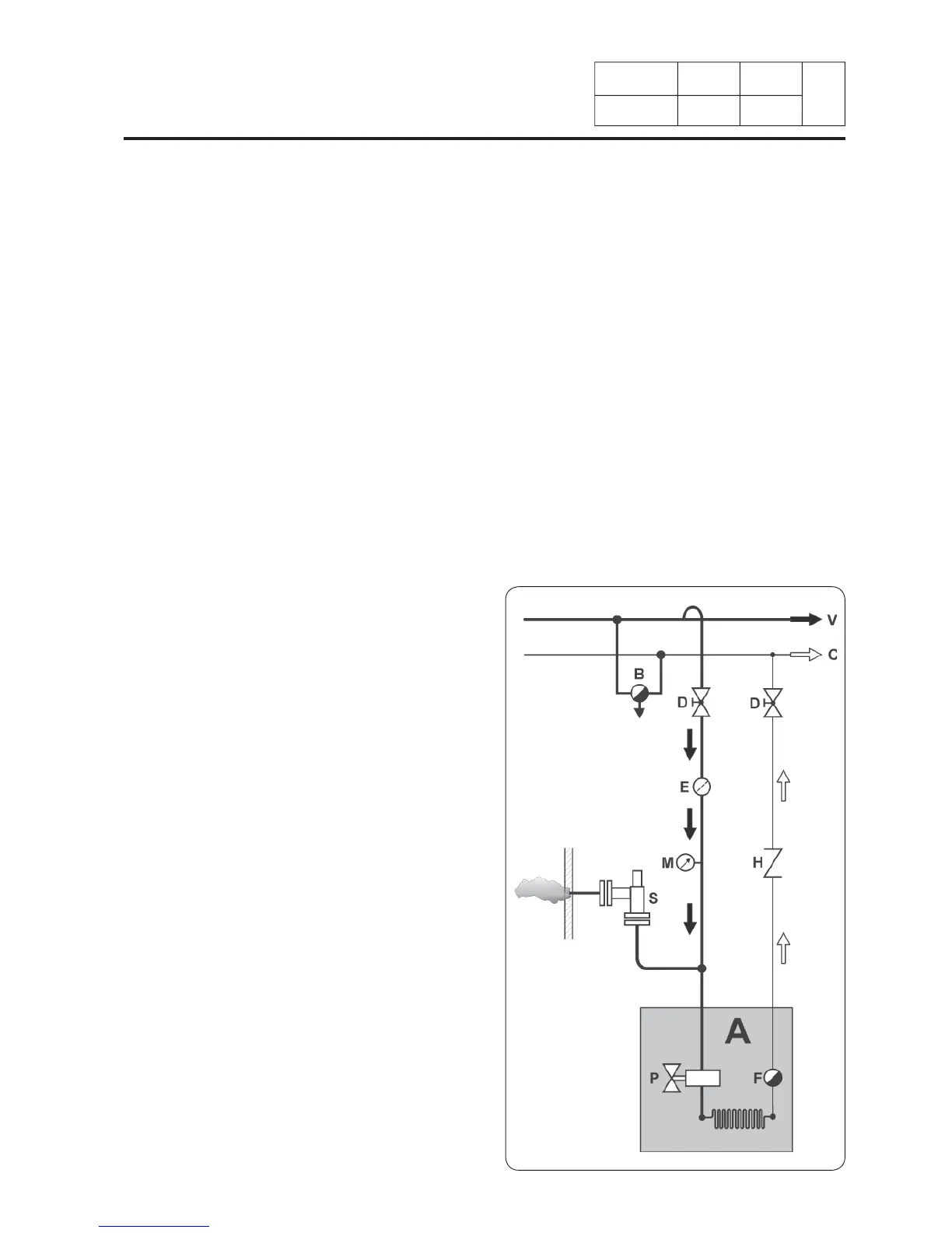
Steam and condensate connections: indirect steam heating
Steam connection
The customer must install a line purge, a manually closing valve with handwheel lockable in off
position (do not use a 1/4 turn valve) and a fi lter on the supply side of the washer-extractor.
Hereunder values apply to the steam pressure.
Recommended pressure : 300 at 600 kPa (3 at 6 kg/cm²) (43.5 at 87 psi)
Limiting of values :
mini. 100 kPa (1 kg/cm²) (14.5 psi)
maxi. 600 kPa (6 kg/cm²) (87psi)
Connection size : DN 15 (½" BSP).
Condensate connection
The customer must install a steam trap with fl oat closed with an incondensibles drainage
device, a by-pass, a non-return valve and a manual closing valve lockable in off position (do not
use a 1/4 turn valve).
Connection size : DN 15 (½" BSP).
Connect the steam installation on the top of
the machine (see example sketch).
A Washer-extractor
B Line trap (provided by customer)
C Return of condensates
D Manual stop wheel valve (provided
by customer)
E Steam lter (provided by customer)
F Steam trap (provided)
H Non-return valve (provided
by customer)
M Pressure gauge (provided
by customer)
N Thermal insulation for the pipework
(provided by customer)
P Steam electrovalve (provided)
S Safety valve (provided by customer)
V Steam inlet
9. Installation

Table of Contents

Related product manuals