EasyManua.ls Logo

Electrolux WSB4250H - Page 30

Electrolux WSB4250H
168 pages
Print Icon
To Next Page IconTo Next Page
To Next Page IconTo Next Page
To Previous Page IconTo Previous Page
To Previous Page IconTo Previous Page
Loading...
07100086B
0408 13
8
Notice
Date
Page
01201138
INSTRUCTION
HANDBOOK
Washer extractor type 500 barrier
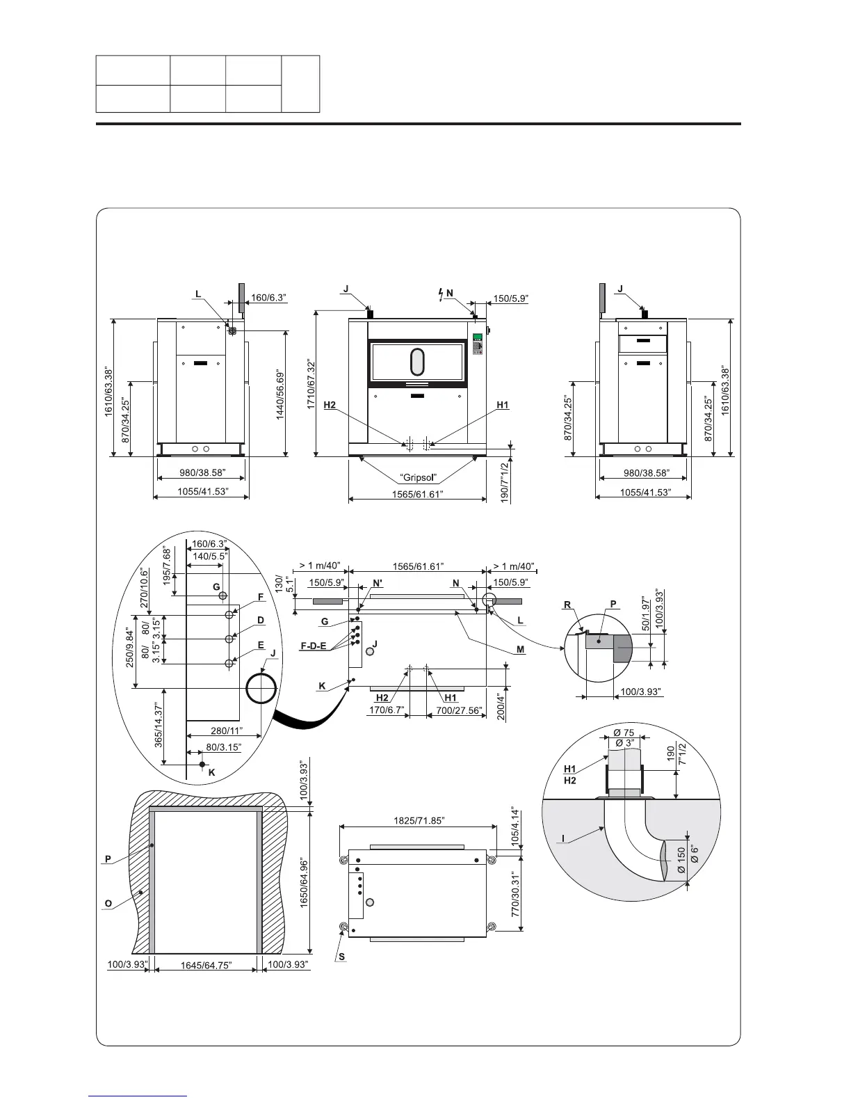
8.Technical
characteristics
Top view
Drain connection
Front viewRight view Left view

Table of Contents

Related product manuals