EasyManua.ls Logo

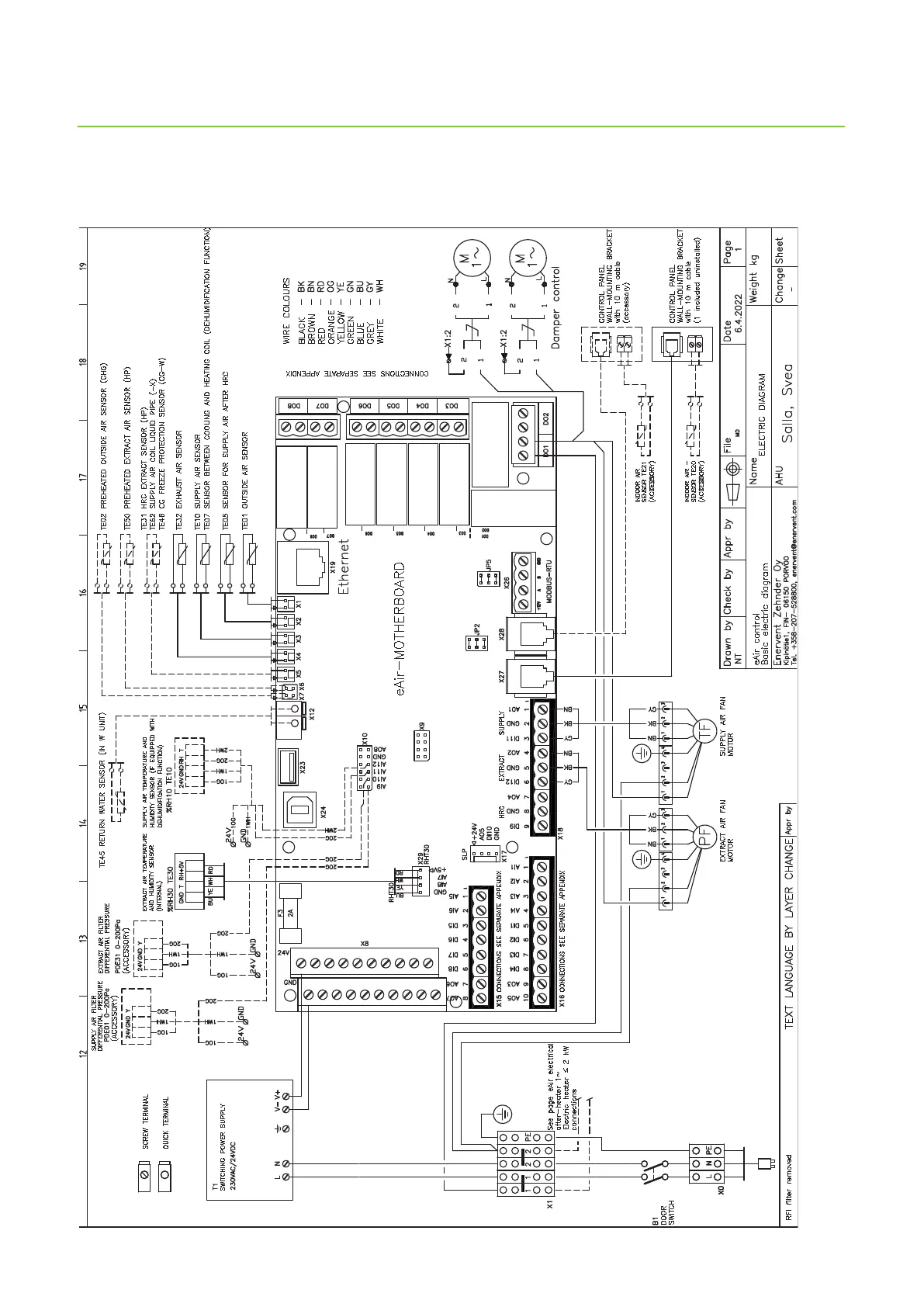
enervent Svea eAir - Electrical Diagrams; Connections

enervent Svea eAir
64 pages
Print Icon
To Next Page IconTo Next Page
To Next Page IconTo Next Page
To Previous Page IconTo Previous Page
To Previous Page IconTo Previous Page
Loading...
5252
Electrical diagrams
Connections

Related product manuals