EasyManua.ls Logo

ESAB Plasmarc EPP-450 - Troubleshooting POS Plate Components; Troubleshooting Electrode Plate Components

ESAB Plasmarc EPP-450
Print Icon
To Next Page IconTo Next Page
To Next Page IconTo Next Page
To Previous Page IconTo Previous Page
To Previous Page IconTo Previous Page
Loading...
50
SECTION 6 TROUBLESHOOTING
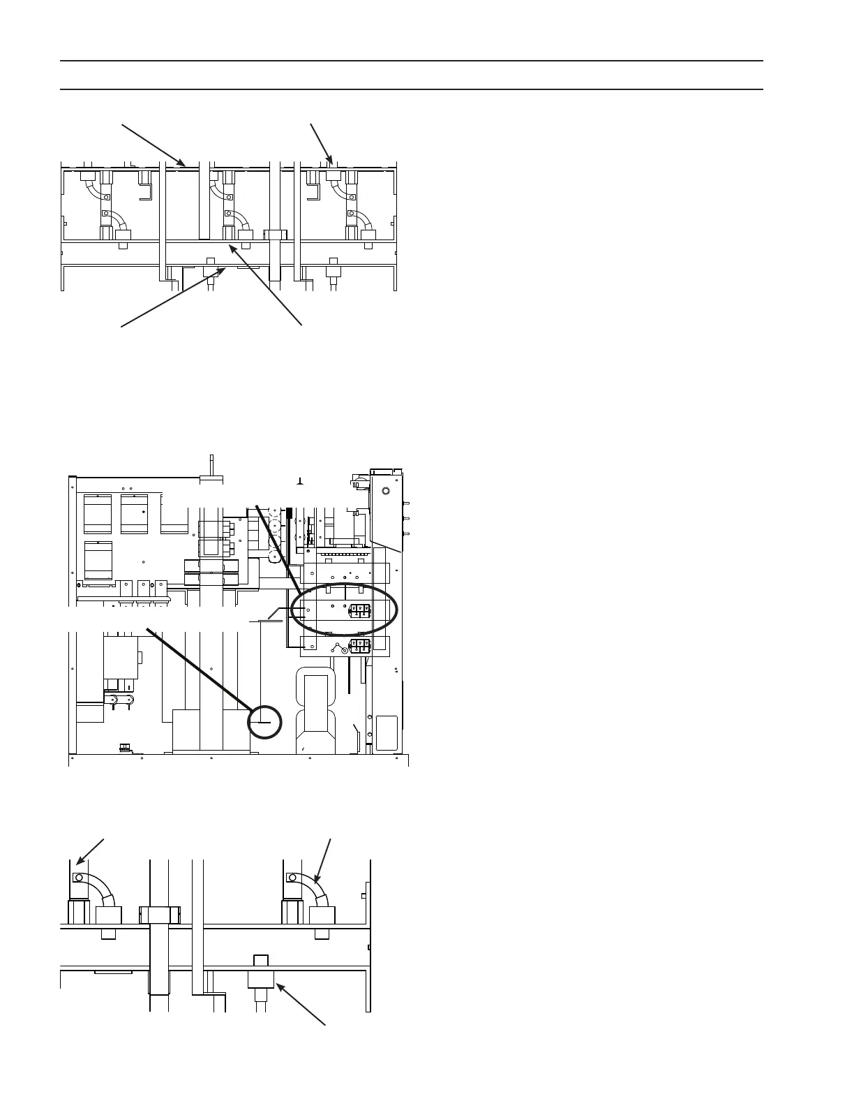
1. CheckohmsbetweenNEGPlateandBRABus.Areading
of2ohmsorlessindicatesoneormoreshorteddiodes.
ReplaceallDiodesonNEGPlate.
2. IffusesF8and/orF9wereopenintherststep,maketwo
moreohmmeterreadings.
 A.MeasureresistancebetweentheNEGPlateand
BR“B”bus.
 B.MeasurebetweenNEGPlateandBR“C”bus.
If resistanceis 2 ohms orlessineither case, replaceallthe
diodesontheNEGPlate.
POSPlateElectrodePlate
DiodeRectierNEGPlate
LocationofPos.Plate
LocationoffusesF8andF9
Troubleshooting POS Plate
1. CheckohmsbetweenPOSPlateandBRABus.Areading
of2ohmsorlessindicatesoneormoreshorteddiodes.
ReplaceallDiodesonPOSPlate.
2. IffusesF8and/orF9wereopenintherststep,maketwo
moreohmmeterreadings.
A.MeasureresistancebetweenthePOSPlateandBR
“B”bus.
B.MeasurebetweenPOSPlateandBR“C”bus.
If resistanceis 2 ohms orlessineither case, replaceallthe
diodesonthePOSPlate.
CathodeLeads
Bus
1. Visuallyinspectforrupturedorburneddiodes.Replace
onlythosedamaged.
2. CheckresistancebetweenElectrodePlateandtheparallel
pigtails(cathodeleads)ofD25andD26.Ifreadingis2
ohmsorless,disconnectleadsfrombusandcheckeach
diode.Replaceonlyshorteddiodes.
Repeat procedure for D27 and D28. Replace only shorted
diodes.
Blocking Diodes D25, D26, D27 and D-28
Troubleshooting Electrode Plate

Related product manuals