EasyManua.ls Logo

ESAB Plasmarc EPP-450 - Current Control and Remote Vref

ESAB Plasmarc EPP-450
Print Icon
To Next Page IconTo Next Page
To Next Page IconTo Next Page
To Previous Page IconTo Previous Page
To Previous Page IconTo Previous Page
Loading...
60
SECTION 6 TROUBLESHOOTING
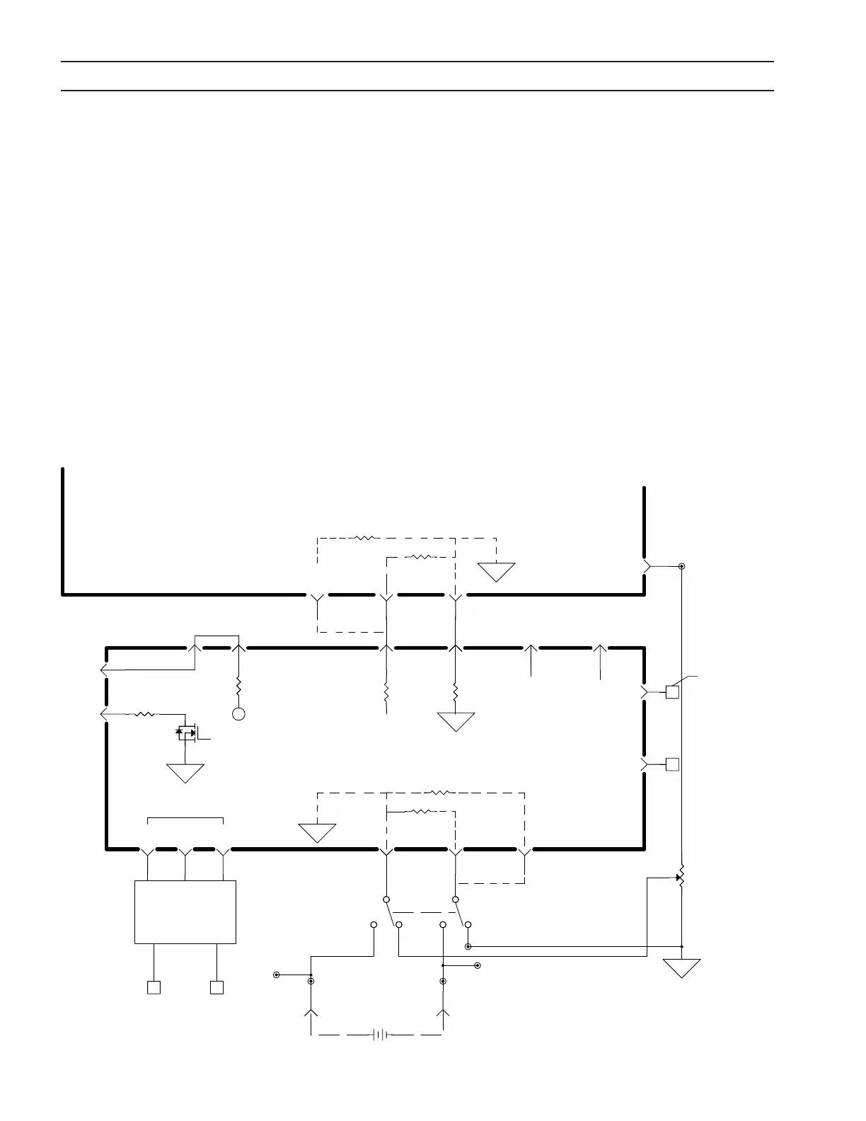
6.9 Current Control Pot and Remote Vref
AReferenceVoltage,V
REF
,isusedtocommandtheoutputcurrentoftheEPP-450.V
REF
isaDCvoltagethatcancomefrom
eithertheCurrentControlPotentiometeronthefrontpanelorfromaremotesource.Inthe“Panel”position,S2,thePanel
/RemoteswitchselectstheCurrentControlPotentiometer.Inthe“Remote”position,thePanel/Remoteswitchselectsthe
V
REF
fedintoJ1-L(+)andJ1-J(-).TheEPP-450OutputCurrent,I
OUT
,willfollowV
REF
withthefollowingrelationship:
I
OUT
=(50)x(V
REF
)inthehighoutputcurrentmodeandI
OUT
=(10)x(V
REF
)inthelowoutputcurrentmode.
PCB10istheanalogsignalscalingboard.If115VACisfedintoP1-2andP1-3theoutputcurrentrangeisinthehighmode
usedforcuttingfrom50to450A.Withthe115VACabsent,theoutputcurrentrangeisinthelowmodeusedformarking
between10and100Aandcuttingbetween35and100A.
TheControlPCBoardcontainstwoinputsforV
REF
:HighSpeed;andNormal.WhenthenegativeoftheV
REF
signalisfedinto
theHighSpeedinput(P8-3),theEPP-450willrespondtoachangeinV
REF
within10mS.WhenthenegativeoftheV
REF
signal
isfedintotheLowSpeedinput(P8-1),theEPP-450willrespondtoachangeinV
REF
within50mS.Theslowerresponseof
the“Normal”inputhelpslterelectricalnoisesometimesencounteredinindustrialenvironments.
200K
200K
10K
SEE PAGE 1, K13-6
R50
P5-8 TB1-3
T
D
N
J1-J, DC SIGNAL
COMMON (NEG)
ALSO SHOWN
ON PAGE 1
EPP-600: I(out) = (80) X Vref
EPP-450: I(out) = (50) X Vref
0.00-10.00V
CURRENT REFERENCE
HIGH
SPEED
NRM
P8-3
CONTROL
BOARD
0558038313
+10T
PRECISION
REFERENCE
S
HI EPP-600: 1V = 80A
ANALOG
SCALING
BOARD
P1-3 P1-2
SIGNAL:
0-10V
P2-1 P2-2
P8-1
+
-
-
+15S
PCB10
115VAC = HIGH RANGE
HIGH
P4-3
NRM SPEED
S
200K
-
- +
P4-1
P4-2
200K
S
TB1-5
TB8-11
TB1-4
TB8-12
P8-2
JUMPER FOR
EPP-600
S2
-
+
TB1-6
J1-J
J1-L
50
0558038326
50
P4-9
220
P3-3 P3-5P3-4
T10
SEC: 40VCT
H N
S BIAS
120V
PRI: 120V
H1 H2
20V20V
P4-10
P4-7
-
+
LO: 10V = 100A
P4-11
JUMPER
S
P4-8
HI EPP-450: 1V = 50A
220
P4-12
66
REMOTE
4
REMOTE
4
11
55
CURRENT
CONTROL
POT
CURRENT
CONTROL
POT
22
PANEL
3
PANEL
3
0558038312

Related product manuals