EasyManua.ls Logo

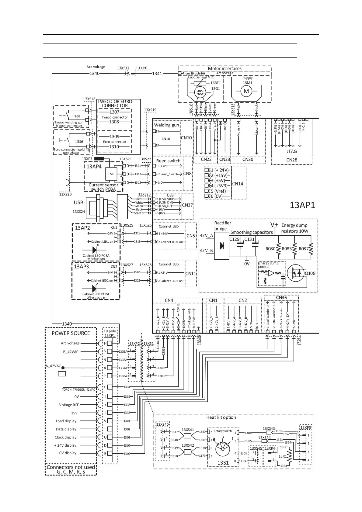
ESAB Robust Feed PRO - DIAGRAM

ESAB Robust Feed PRO
46 pages
Print Icon
To Next Page IconTo Next Page
To Next Page IconTo Next Page
To Previous Page IconTo Previous Page
To Previous Page IconTo Previous Page
Loading...
DIAGRAM
0463 691 001
- 39 -
© ESAB AB 2019
DIAGRAM

Related product manuals