EasyManua.ls Logo

ESAB Thermal Dynamics CUTMASTER 40 - APPENDIX 1: DATA TAG INFORMATION

ESAB Thermal Dynamics CUTMASTER 40
64 pages
Print Icon
To Next Page IconTo Next Page
To Next Page IconTo Next Page
To Previous Page IconTo Previous Page
To Previous Page IconTo Previous Page
Loading...
CUTMASTER 40
0-5557 APPENDIX
53
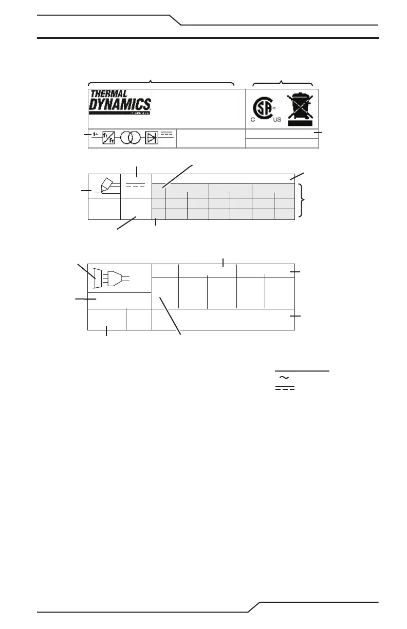
APPENDIX 1: DATA TAG INFORMATION
U1
1
1
1max 1e
I
I
U
2
U
0
=
X
Standard Symbols
Ø
AC
DC
Phase
NOTES:
1. Symbol shown indicates single- or three-phase AC input,
static frequency converter-transformer-rectier, DC output.
2. Indicates input voltages for this power supply. Most power
supplies carry a label on the bottom of the unit showing input
voltage requirements for the power supply as built.
3. Top row: Duty cycle values.
Duty cycle values meet or exceed the
IEC specied rating.
Second row: Rated cutting current values.
Third row: Conventional load voltage values.
4. Sections of the Data Tag may be applied to separate areas
of the power supply.
I
Art # A-14369
Output Range (Amperage/
Voltage)
Type of Power
Supply (Note 1)
Output Current Type
Rated No-
Load Voltage
Plasma Cutting
Symbol
Manufacturer's Name and/or
Logo, Location, Model and
Revision Level
Conventional
Load Voltage
Regulatory Standard Covering
This Type of Power Supply
Duty Cycle Data (Note 3)
Duty Cycle Factor
Input Power
Specications
(Phase, AC or DC
Hertz Rating)
Input Power
Symbol
Rated Supply
Voltage (Note 2)
Rated Maximum
Supply Current
Maximum Eective
Supply Current
Degree of Protection
Manufacturer's Electrical
Schematic File Number
and Revision Level
Victor Technologies Group, Inc.
2800 Airport Road
Denton, TX 76207
USA
Model: CM40 - CSA/UL
Made in Poland
CSA E60974-1
ANSI/IEC 60974-1
Class A
Ser. No.
Art. No.
Serial Number

Table of Contents

Related product manuals