EasyManua.ls Logo

ESP MAG816 - Repeater Panel; Connecting of Repeater Panel

ESP MAG816
32 pages
Print Icon
To Next Page IconTo Next Page
To Next Page IconTo Next Page
To Previous Page IconTo Previous Page
To Previous Page IconTo Previous Page
Loading...
MAG816 - Installation and Operation Manual 15
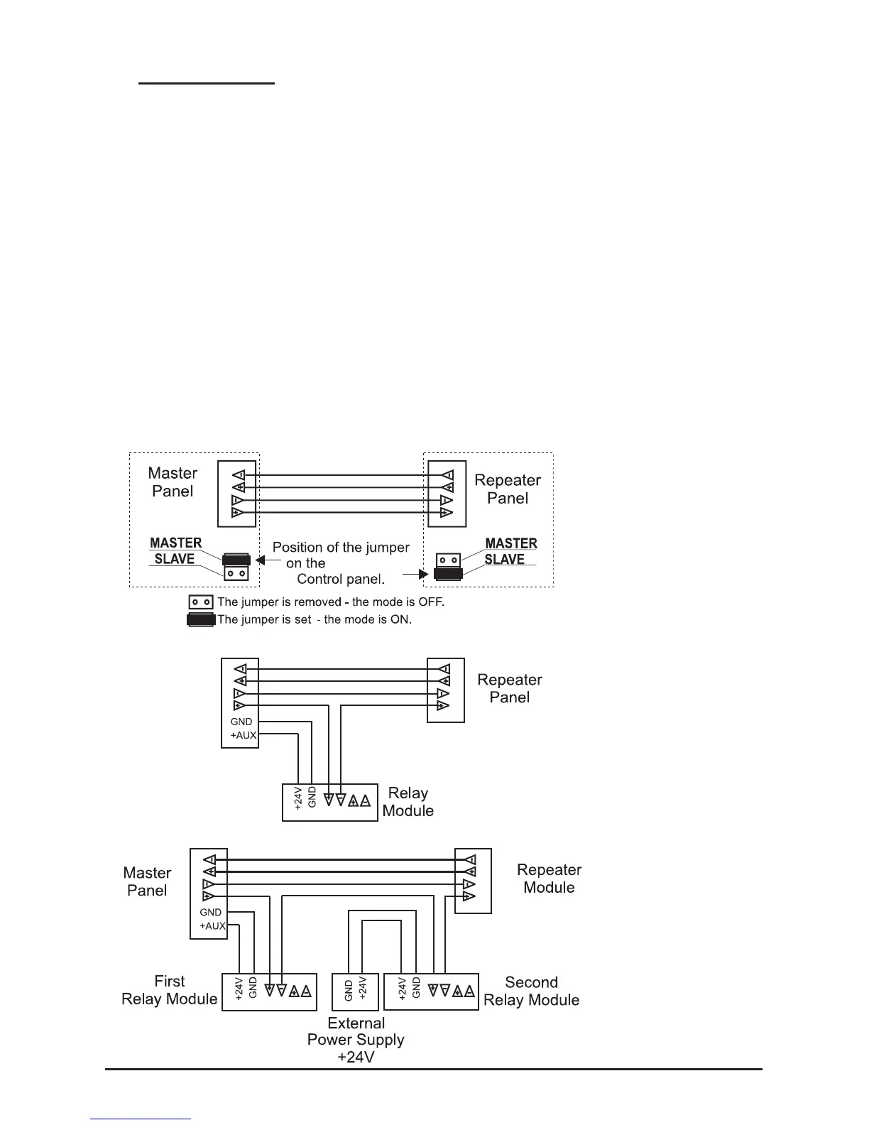
4.2 Repeater Panel
A second MAG816 can be connected to the MAG816 Fire Alarm panel as Slave. The
function of the Slave is to double the light and sound indication and the button control of
the rst panel at a distance up to 1000 m. For the purpose, to both of the panels have to
be assigned specic priorities: The rst re alarm panel shall be the system Master and
the second - Slave.
The Master panel is congured by setting a jumper on the Master position of the main
module, and the Slave - with a jumper on the Slave position (see Figure 10).
Figure 20 shows the connection between the Master and Slave MAG816 panels.
Connecting of Repeater Panel
When adding a repeater panel in the re system:
• Turn off the main and the stand-by power supplies.
• Connect the repeater to the rst MAG816 - see Figures 20, 21 and 22.
• Set a jumper on the Master position of the main panel - see Figures 10 and 20.
• Set a jumper on the Slave position of the second panel - see Figures 10 and 20.
• Turn on the main and the stand-by power supplies of the Slave panel.
• Turn on the main and the stand-by power supplies of the Master panel.
Figure 20.
Connecting between
Repeater and Master
Panel.
Figure 21.
Connecting between
one Relay Module,
Repeater and Master
Panel.
Figure 22.
Connecting between
two Relay Modules,
Repeater and Master
Panel.
MAG816
Master
panel