EasyManua.ls Logo

ESP MAG816 - Configuration of the Basic Modules

ESP MAG816
32 pages
Print Icon
To Next Page IconTo Next Page
To Next Page IconTo Next Page
To Previous Page IconTo Previous Page
To Previous Page IconTo Previous Page
Loading...
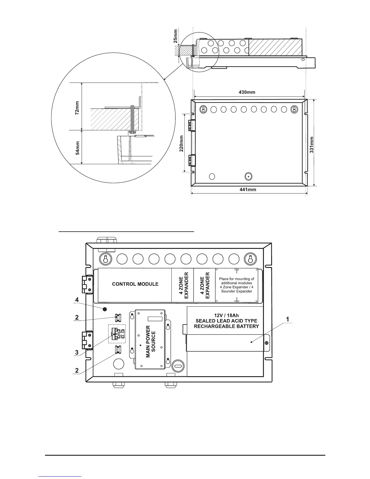
8 MAG816 - Installation and Operation Manual
Figure 8. Flush mounting holes.
Main view of the xed to the wall hangers and the bolts supporting the metal box.
3.3 Conguration of the Basic Modules
Figure 9.
1 - Metal clamp for supporting the battery.
2 - Clamp for supporting the main power supply cable.
3 - Terminal for connecting between the mains power supply and the power
source. T-type fuse 2A (Position 3, page 31).
4 - Earthing point.