EasyManua.ls Logo

Evolveo SecuPro - Overview of Wiring

Evolveo SecuPro
Print Icon
To Next Page IconTo Next Page
To Next Page IconTo Next Page
To Previous Page IconTo Previous Page
To Previous Page IconTo Previous Page
Loading...
88
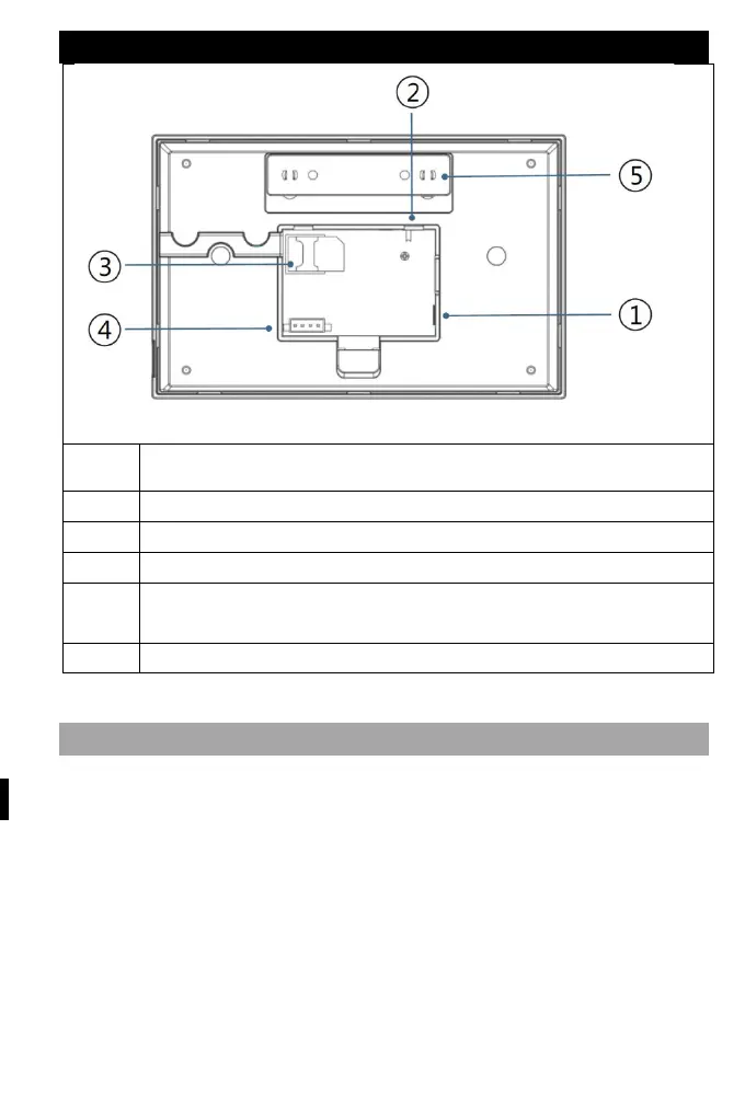
OVERVIEW OF WIRING
Index
1
2
3
4
5
CONNECTION OF FIXED ZONES
Zone 1, Zone 2 and Zone 3 are EOLR zones that support both open
and closed circuit devices and have a response time of 300 msec.
Maximum zone resistance: 11,000 ohms, plus EOLR
Connect the closed-circuit device in series on the positive (+) side
of the loop. The EOL resistor must be connected in series with the
devices after the last device.
Connect open circuit devices in parallel via a loop. For the last
device, a 10000-ohm EOLR must be connected through the loop.

Table of Contents